本案是一套面积为60平米的老房改造案例,房子位于上海愚园路弄堂里,有着浓浓的上海文化气息。房子虽老旧,但经过设计师的改造,不仅焕然一新,而且还美出了新境界。

▲ 原始结构图
狭长的户型,进门依次是卫生间、厨房和两个卧室,房子在一楼,格局不合理,采光也很差。

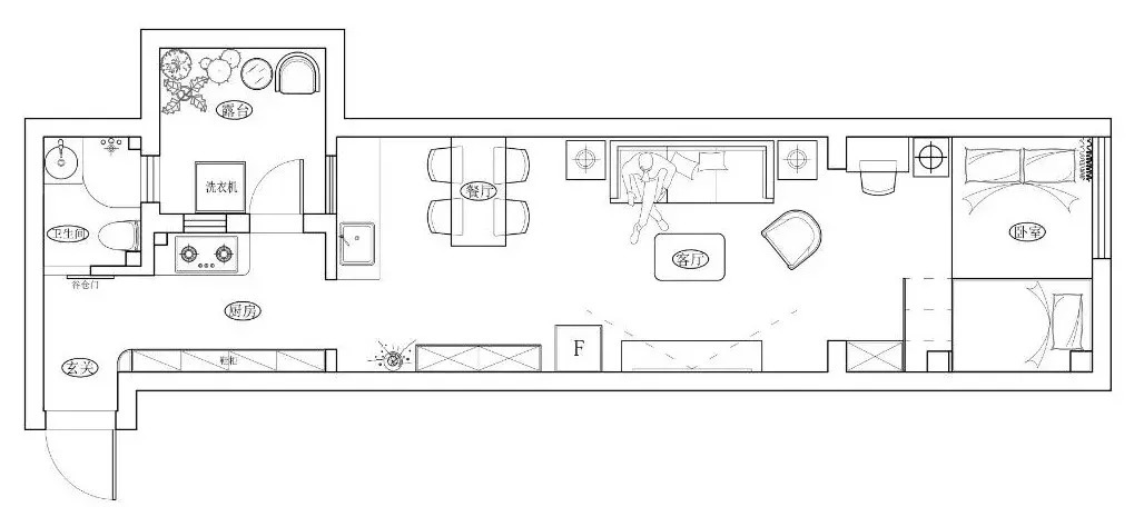
▲平面布置图
根据业主的需求,将中间的卧室改造成客餐区,去掉原来的隔断移门,充分引入自然光;利用过道空间设计了厨房功能。
| 玄关&厨房 |

进门这一块,集中了玄关、厨房和卫生间三个功能区,为了保证动线流畅,尽量留白,层叠鞋架,收纳常穿的鞋。

利用过道一侧定做了薄薄的上下吊柜,充分利用过道的位置规划了充足的收纳功能。同时也是厨房的操作台。

厨房虽小,灶台、洗碗机、复古小电器,一个不少~一个人的生活也不能就将。

由于卫生间空间过小,便就干区移到了餐厅,也算是实现了干湿区的分离。台面加长,上面放饮水机,底下的位置刚好容纳下一个小冰箱。
| 餐厅 |

从厨房到餐厅, 六边形地砖与地板完美的拼接,形成功能区的自然分隔。洗手台后面的背景墙刷了一面黑板漆,偶尔写写画画,不失生活的小情趣。

餐厅背景墙,刷了粉白色墙漆,三角形图案,呼应灯光阴影,给空间增加一点趣味~


餐厅任何一个角度,随手一拍都很好看。
| 客厅 |

为改善采光,取消了隔断门,整个空间看上去也更加宽敞通透。

客厅地方不是很大,以小边几代替茶几功能,动线更加流畅。边几的高度也很适合,坐在沙发上,随手放放手机、遥控器,不用专门起身。100寸坚果激光电视,在家看电影,视觉效果一级棒~


监控、空气净化器、扫地机器人还有门口的电子猫眼,现代智能,让生活更加舒适便捷。
| 卧室 |

全屋的储物收纳,主要是在卧室区,双层榻榻米床,抽屉式楼梯,还有一个衣柜,收纳空间充足。

利用原来的短墙,内嵌一面顶天立地高柜,边角空间也用起来做开放柜格,放放书籍、文件。高底床下还有一个小空间规划成了衣帽间,太实用了。
推荐阅读
- 卫生间|129平现代美式三居室,打造出一个舒适又温馨的美式家
- 三居室|118平现代风三居室,一个简单而纯粹还原生活色彩的家
- 施工|面宽均为12米的两栋自建房,简单施工易,造价25万上下
- 郑州|买房月供曝光!郑州最新平均工资8694元,撑得起房贷么?
- 石家庄|144平的面积,无人值守棋牌室,这是如何做到的?
- 简单感|现实的平衡取舍,才是生活之道!143平现代风格设计欣赏!
- 她家148平米,进门就被玄关迷住,不做吊顶跟背景墙,阳台超漂亮
- 修建|精选10套三层户型图纸,占地面积均不足百平,尤其适合新农村修建
- 南通|拍卖成功!江苏南通一处197平住宅192万成交!
- 购房置业|农村建新房就选这套四层别墅,占地100多平,8间卧室人人都有地睡
