
玻璃门打开后是淋浴房,洗衣机在镜头右侧的转角区,就不晒细节了。

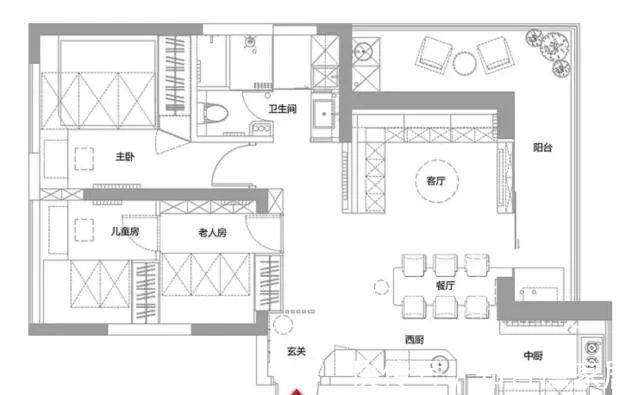
这套案例是一个两房改三房的案例,本身。原始户型图为两室一厅,但是却需要居住三代五口人。

改造之后巧妙的让扩大了卫生间的总面积,牺牲了部分主卧的面积。而且还把次卧改造成了两个房间。而如今的卫生间成了三分离的模式比前两套的分离更合理。咱们来看看。

改造时候外面的干区更为开阔,恰好也借用了卫生间窗户,让过道的采光更好更通透。圈出来的区域明显看到是两个玻璃房,分别有单独的门。
这样就实现了三分离,洗澡的时候,可以有人用马桶,外面还可以供两个人一起洗漱。

右侧是双排的浴室柜,两个水槽可以供两个人同时使用,一高一低的设计。

原本是因为左边要装入洗衣机,右侧不必装。谁知却实现了不错的人机工程学理念,根据身高家人可以选择适合的高度使用。并且镜子背后都是柜子,储物超棒。下面还有灯带,无死角采光。

马桶区,装了墙挂马桶更为节约空间。

右边和第一套案例类似,不仅可以淋浴还有独立小浴缸,满足两种洗浴需求。太实用啦!
(本文由齐家安安整理编辑,图片来源于网络,如有侵权请告知我们删除!
推荐阅读
- 卫生间|129平现代美式三居室,打造出一个舒适又温馨的美式家
- 收纳|去邻居家参观才知道,卫生间不装柜子这样设计,防潮耐脏好清洁
- 卫生间|什么才叫好户型?来看看这5个标准,你家房子符不符合?
- 卫生间|房屋装修6大暗坑,哪个踩了都会导致返工,希望你没踩到。
- 家庭成员|卫生间进门洗漱台,中间马桶,里面淋浴,怎么装?有哪些设计方案?
- 马桶|把洗手台埋到墙里,卫生间一下变大了很多,美观又实用,好处多多
- 淋浴房|越来越多人卫生间不装马桶了,如今流行这样设计,实在太聪明了
- 矮墙|小户型卫生间别再装玻璃淋浴房了,头一次见这种设计,太聪明了
- 卫生间|卫生间玻璃胶总是发黑怎么办?老师傅教你一招搞定,网友直呼聪明
- 卫生间|去了舅舅家才发现,有钱人卫生间不装毛巾架,看看下图,太上档次
