极简风作为当下主流的装修风格,相信很多人都会被其简约、利落、干净的气息所吸引。尤其是对于追求断舍离生活方式的人来说,更是会将家里的装修风格定位成极简风格。当然,极简也并不代表简单,而是以最纯粹的方式,让空间与居住者的情绪产生呼应。
比如本期案例中的屋主,就是以极简风来定位空间风格的。甚至为了追求极致的极简主义,还以大量留白的方式,将家里装修得一尘不染,看起来既高级又很有质感。
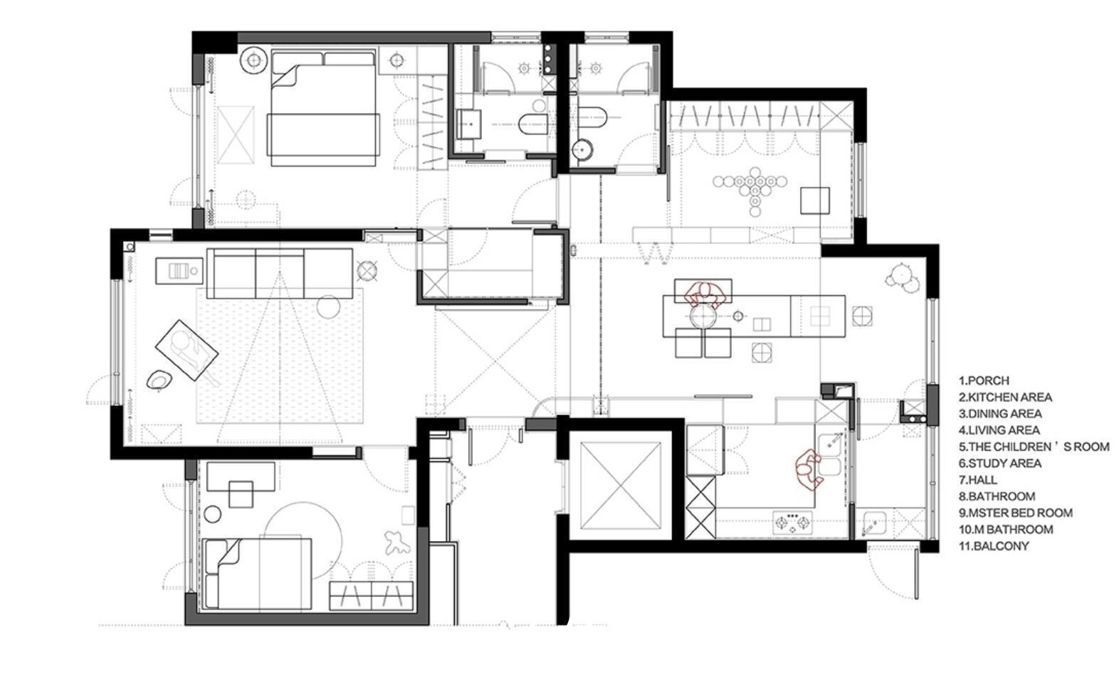
平面结构图
本案坐标浙江,建面130㎡,原户型是标准的三室两厅两卫格局,不过考虑到目前只有屋主夫妇两个人居住,所以整体是以两居室的功能来布局的。主要调整的位置有以下几处。
1、客厅旁边增加衣帽间,在提高主卧收纳能力的同时,明确入户玄关区。
2、餐厅与旁边的房间打通,并采用柜体来隔断,让空间形成隔而不断的结构。
3、南阳台纳入室内,北阳台一分为二,在提高室内面积的同时,解决日常的洗衣需求。
玄关
当主卧增加一个衣帽间之后,也自然为入户玄关形成了一个端景墙。墙面采用白色的木饰面以及水泥漆来设计,在呼应现代几何元素的情况下,也在视觉上营造出了一种简约、沉稳的高级感。同时,大量留白式的处理手法,也赋予了空间更多的思考与情绪。
客厅
来到客厅,大面积的白与灰碰撞,在冷静中又做到了克制。顶面拉平并做无主灯设计,地面铺上灰色的地砖,既做到了简约大气,又不失立体的层次。而当外面的南阳台纳入进来后,也赋予了视觉更多的延伸性。

沙发墙拆掉可拆掉的非承重墙体,并以内嵌式设计一组储物柜,不仅让空间面积得到了充分利用。部分柜体采用开放式来处理,也在视觉上打破了单调。而灰色的沙发配置,也再次彰显出了利落的几何元素。

电视背景墙同样以留白为主,虽说看起来有一些单调了,但当画框电视机安装上,并在底部内嵌一台电子壁炉后,却也在视觉上做到了平衡,并且还起到了调节室内温度的作用。同时,给墙角安装上极窄的踢脚线,看起来也相当的简洁。而为了保持统一,旁边的儿童房门也做了隐形设计。

餐厅
进门右手边就是餐厅,整面墙的储物柜设计,充分保障了空间的收纳能力。同时,考虑到该柜体兼具了鞋柜的收纳功能,转角处采用弧形元素来设计,还间接性让空间动线更加流畅、自然了。当然,一门到顶的柜体结构,也在视觉上起到了拉伸层高的作用。

当北卧室与餐厅打通之后,同样用储物柜代替了隔断,并在右侧增加了长虹玻璃。这样一来,既再次提高了空间的收纳能力,又在视觉上做到了隔而不断。黑色餐桌居中而设,在与空间形成对称的情况下,又让空间形成了洄游动线,非常灵活。
推荐阅读
- 大悦城|家里这两个地方别漏了贴瓷砖,许多人为了省钱,入住就后悔了
- 美好生活|欧哲门窗副总经理周志军:「拓」不忘初心同心同德,成为美好生活空间首选品牌
- 管道|为什么说:再穷也不买二层?了解这些弊端之后,就知道多糟心了!
- 文商旅|碧桂园文商旅长租公寓持续发展,为城市青年带来更舒适居住体验
- 潘石屹|许家印:潘石屹,为何你能安全下车?
- 施工|面宽均为12米的两栋自建房,简单施工易,造价25万上下
- 购房置业|为什么买房不要买靠边的房子?这些问题要注意,开发商不会告诉你
- 补发|快讯:旭辉·旭城昌泰两个楼栋补发获预售证,房源均为一楼商业
- 房产税|美国作为发达国家,他们为何不用混凝土建造房子原因很现实
- 防水|东方雨虹为何不惧地产下行?
