

第九套:
占地尺寸:16.1m*11.7m
占地面积:188.3㎡
建筑面积:380.9㎡
一层可做商铺的欧式风别墅,一层商用,二层居住。



第十套:
占地尺寸:20.8m*10m
占地面积:198㎡
建筑面积:351㎡
二层新中式别墅,方正气派。



第十一套:
占地尺寸:17.7m*17.7m
占地面积(不含庭院):159.3㎡
建筑面积(不含庭院):308㎡



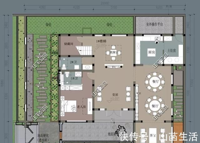
第十二套:
占地尺寸:21.1m*20.5m
占地面积:434.2㎡
建筑面积(不含内院):329.3㎡

平面布局图:


第十三套:
占地尺寸:20m*16.8m
占地面积(不含庭院):175.7㎡
建筑面积(不含庭院):360.8㎡



第十四套:
占地尺寸:21.3m*12m
占地面积:281㎡
建筑面积:420㎡



第十五套:
占地尺寸:20m*13m
占地面积:247㎡
建筑面积:404㎡


推荐阅读
- 屋主|56㎡小户型老房改造,小而美的设计!
- 小户型|发现丈夫赠人房产 妻子怒讨买房款
- 建房子|面宽11米, 进深16.5米的农村三层别墅, 前后有花院还带车库, 完美!
- 卫生间|什么才叫好户型?来看看这5个标准,你家房子符不符合?
- 别墅|参观亲戚上海的豪宅,别墅硬是住成农村房,真是糟蹋了好房子
- 购房置业|今年起,农村老家的老房子,统统按照“新规”处理,子女提前知晓
- 修建|精选10套三层户型图纸,占地面积均不足百平,尤其适合新农村修建
- 上海市|2022年农村人要“享福了”?实行按户补贴,跟村民们的房子有关
- 住房公积金|什么才叫好户型?来看看这5个标准,你家房子符不符合?
- 洗衣房|这三款农村四合院设计图让不少城里人羡慕,父母看了也欢喜
