如今的农村到处都可以看见新颖的别墅,也彰显了现代人对生活完美的追求以及生活质量的提高,由此可见国家的发展迅速,与此同时也衍生出了一些限制宅基地面积的政策,既然有限制,那我们就把别墅的那个细节做好,做完美来。
今天,为大家带来一套占地比较小的四合院设计案例:

房子基本信息:
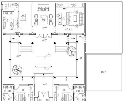
建筑尺寸:16x20m
建筑面积:268.6平方米
结构:砖混结构
土建造价:50万

四合院的占地面积在170平方米左右,东南角是户主家原来的旧房子,需要保留的。房子地处半山腰,只有一条路与村内相通。

四合院的墙体主要采用青砖砌筑的,给人带来一种历史的韵味,在配合真石漆,美观的同时又实用,完美弥补了古宅的弊端。

从整体看上去,房子还有一个非常突出的亮点,四合院的外观设计非常协调,青砖,真石漆,青乌瓦相互映衬了中式的沉稳气息。朱红色的承重柱与中式花边红色窗进一步的突出了中式的喜庆。

四合院分成南北两栋,两边的房子通过走廊连成一体,走廊可以遮风挡雨,也为入户增添了仪式感。走廊没有设置任何的装饰,在这有限的空间最大化的增加了视觉空间感。


庭院入户处设计了影壁墙,起到了屏风的作用,院前的三步阶梯给人一种非常享受的入户感,在配合上气派的大门个门前的深邃空间,增加了不少入户的仪式感。

一楼的布局设计非常对称,堂屋坐落在正中间。客厅位于东侧,设计了博古架个茶室,两者结合起来给客人带来非常好的享受。考虑到老人上下楼梯不方便,在一楼还设计了老人房。

【 户主家|喜庆的四合院设计,家里的宅基地小也可以盖,很适合农村】二楼设计了三间卧室,并且东西两侧的卧室都配有衣帽间,阳台可以俯瞰整个庭院的风景个远处的风景。
推荐阅读
- 屋主|56㎡小户型老房改造,小而美的设计!
- 春节|如果能重来,阳台一定“9不装”,并非迷信,是过来人的经验教训
- 装修|乔迁新房3月以泪洗面!当初的不理智,连犯15个极品装修坑!作孽
- 现代风|168㎡现代风,带着浓郁的归属感与愉悦感
- 深色|155㎡简约风,承载着三代人的生活,不花哨让家务少一半
- 混淆感|146㎡北欧经典白色三居室,诠释令人心醉的优雅
- 造纸|生活用纸,黄卫生纸真的好于白色卫生纸吗?来听造纸员工怎么说!
- 对象|廉租房和公租房的有什么区别?
- 饱和度|173㎡轻奢新中式,古典和现代的碰撞,唯美浪漫!
- 小钱|游点好笑!收手机的新方式,一抓一个准!这老师怕是柯南看多了?
