这套房屋的装修在空间划分,色彩运用,细节搭配上都非常用心,北欧风的设计传递出最完整的视觉美感,120平米的三居室营造出沉稳的生活品质,一步一景,细微之处见极致。装修与灯光恰到好处的配合,将各个居室映衬得柔和淡雅,独立且相融。业主需求:两口子刚结婚不久,对装修不是特别懂。设计理念:缺点:户型很少见,很多地方不可改动。优点:整体房间采光是非常好的。修改方案:卫生间,厨房都不是特别好动,所以干脆就将就以前的位置,把房间靠近洗漱区域
湿润质感的浅木色家具,高低错落搭配使用,实用且提升层次感
卧室的色调清新而温暖,做旧木板材质的壁纸,让睡眠区出现一抹清新
户型的通透感强,不同区域使用不同的材质和灯光
书房改成了开放式的,功能区的动线非常灵活,尽可能地设计了一些储藏空间
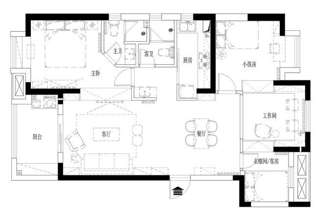
平面布置图
推荐阅读
- 容积率|贵安挂牌14宗商、住地,总面积约23.42万方,最高起拍价1208元/㎡
- 防水|129平混搭三居室,五颜六色的室内配色怎么这么好看!
- 玄关|115平现代风三居室,玄关简单大方白色的主色调很美
- 藏书|96平现代风三居室,沙发墙居然是一排书柜,没事看您书太惬意了
- 色调|120平北欧三居室,这个白色的玄关设计会俘获很多人的心吧
- 开阔性|120平做二居室客厅居然敢用姜黄色、草绿色家具,但是还挺好看
- 三居室|150平古典风三居室,品味那清欢与平淡
- 口头说好成交价120万,房价涨了想反悔?法院怎么判?
- 户型|115平混搭设计三居室,高端大气上档次
- 住宅|南通再发新政!最高补贴1200元/㎡,公积金最高能贷160万!
