
文章图片

文章图片
【豪宅|这栋豪宅有12间卧室,室外还有玻璃房,观景凉亭看起来也很不错】
文章图片

这几年 , 农村的别墅就跟雨后春笋一般 , 一栋栋地都冒了出来 , 我也相信在往后的几年时间里 , 别墅只会越来越多 , 你说 , 如果大家生活条件不够好 , 会有心情在农村盖一栋别墅吗?所以 , 住宅环境越来越好 , 就是我们物质生活越来越好的强有力证明!走在乡间道路上 , 看着周边的村庄和农田 , 我们内心的波动是很大的 , 肯定会想到小时候的一些生活场景 , 跟现在反差其实挺大的 。
我们也是这两年盖别墅的人增多 , 普通的两层和三层小别墅非常多 , 但是要说非常豪华的别墅 , 一眼看上去就令人赞叹 , 感慨这一定是有钱人家的还是没那么多 。 所以 , 在老家盖一栋与众不同的豪宅 , 真的可以说是一鸣惊人的效果 。
这栋豪宅面宽16米 , 进深13.8米 , 三层半设计 , 斜屋顶 , 带多边形窗 , 正立面的造型非常好看和大气 。
这么大的户型 , 厨房照样是单独建的 , 没有放在主屋内 , 主屋内有三个房间都带独立卫生间 , 一间休闲棋牌室 , 旁边是电梯井 , 客厅也分为大客厅和小客厅 , 空间这么宽敞 , 所以咱们可以尽情地讲究点 。
二层有是个房间和一间书房 , 室内的休闲客厅空间很大 , 室外有一处阳台 。
三层一间卧室带书房和私卫 , 一间家庭式KTV房 , 一间健身房 , 连着设备间和室外的玻璃房等空间 , 该层室外还有大露台和观景凉亭 。
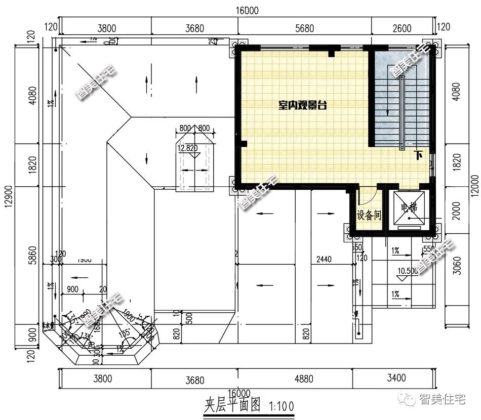
最后半层是一个室内观景台 , 也可以用于储物 。
这栋别墅的层次感很好 , 简欧风格又特别大气 , 室内空间很宽敞 , 这样的别墅谁不想要?
推荐阅读
- 避难|如果有人向你推荐这4个楼层,别轻易心动,只有住过的知道有多坑
- 长沙|中信国安北海第一城12栋双拼别墅低价被拍卖,有人一下买两栋
- 购房置业|有经济能力的家庭,尽早买房才最正确,这3点对比告诉你原因
- 房地产市场|房地产进入到六月份,我有种不祥的预感
- 上海市|上海有房子780万套,78%的房子是6层以下没有电梯的房子
- 销售额|百强房企销售额大跌超五成!为什么还是有这么多人买不起房?
- 王健林|坐拥417个广场收租,公司现金就有188亿,王健林才是隐形首富
- 青岛市|亏惨!8年亏掉700万,重庆某豪宅业主挣扎8年,快绝望了
- 李子柒|拍卖房里面有租客和钉子户怎么办?别着急,这样做就可以顺利收房
- |双组份透明灌封胶的特性是什么?如何使用?有哪细节需要注意?
