户型|60平两室一厅,日式风格力求简洁,小户型也能很舒服
60平两室一厅,日式风格力求简洁,小户型也能很舒服
很多人对于老房子的装修都很头疼,尤其是小户型更觉得无从下手,其实主要是要按照房子本身的结构和房主的需求进行设计。本案是一个仅有60平的小户型,一家三口人生活,房子采光好是最大的优势。房主对设计要求不多,但是本身房子的储物空间不足,因此选择日式的装修风格,尽可能的把空间都利用起来,让房子在整个装修后更加敞亮。
案例:
日式装修风格
主要建材:
橡木装饰、进口地砖、反光板材、灯饰等
居住成员:
2成年人,1儿童
房屋面积:
60平米
房屋类型:
2室
预算:
20~30万
城市:
北京
设计师:
陈大为
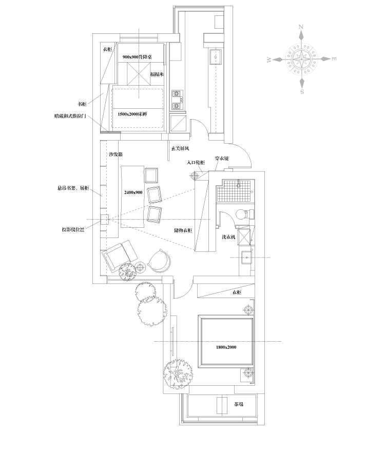
【户型图】
户型图显示房子很不规整,但是只要在装修上多做一些改动,可以让房子整个居住起来更加舒适。房子的北侧是儿童房和厨房,因为厨房空间较小,所以在装修的时候向外延伸了一些,这样给厨房让出的空间,可以做成橱柜方便厨房的收纳。另外,房子的客厅不大运用空间设计,让客厅在视觉上有开阔的感觉,基本上采用拉门和镂空装饰门,客厅不显得拥挤。
【阳台】
设计重点:
落地窗
改成落地窗后,发挥了房子采光好的的特点,将窗台延伸出来,平时可以坐在阳台上欣赏景色,品茶聊天。
【卧室】


设计重点:
东方情调
墙纸选择了很有东方美学感的画来装饰,和整体古朴的风格相得益彰,虽然主卧空间不大,但是温馨且有古韵。
【儿童房】
设计重点:
半开放式
儿童房整体做成了半开放式的榻榻米,中间有一个升降桌可以做为书桌使用,也可以用来待客,榻榻米一侧的大柜子很实用。
【其他】


设计重点:
日式元素
房子是日式风格,因此在家里的装修设计或者是摆设上,都用了一些日式的元素在其中。
【玄关】

设计重点:
镂空花纹
不管是柜子还是隔断,都选择木质镂空设计的板子,增加了室内的通透性,不会有太强的压迫感。
【厨房】

设计重点:
多功能
将洗衣机也设置在厨房,这样厨房除了做饭之外,还可以洗衣服。厨房选择白色为主色调,整体很整洁,嵌入式的家电设计,加强了对空间的合理利用。
【餐厅】
推荐阅读
- 屋主|56㎡小户型老房改造,小而美的设计!
- 卫生间|129平现代美式三居室,打造出一个舒适又温馨的美式家
- 三居室|118平现代风三居室,一个简单而纯粹还原生活色彩的家
- 郑州|买房月供曝光!郑州最新平均工资8694元,撑得起房贷么?
- 小户型|发现丈夫赠人房产 妻子怒讨买房款
- 石家庄|144平的面积,无人值守棋牌室,这是如何做到的?
- 卫生间|什么才叫好户型?来看看这5个标准,你家房子符不符合?
- 简单感|现实的平衡取舍,才是生活之道!143平现代风格设计欣赏!
- 她家148平米,进门就被玄关迷住,不做吊顶跟背景墙,阳台超漂亮
- 修建|精选10套三层户型图纸,占地面积均不足百平,尤其适合新农村修建
