迷你公寓|西南驿34㎡迷你公寓空间设计( 二 )





空间拆解示意图
空间拆解示意图
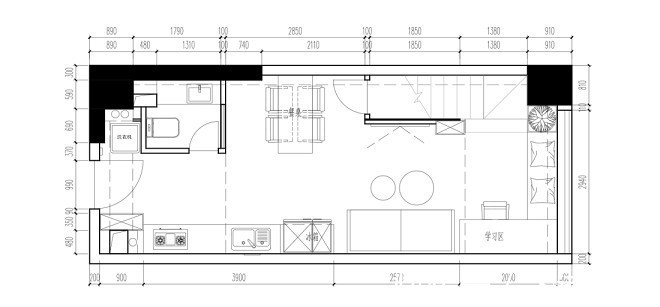
一层平面设计图
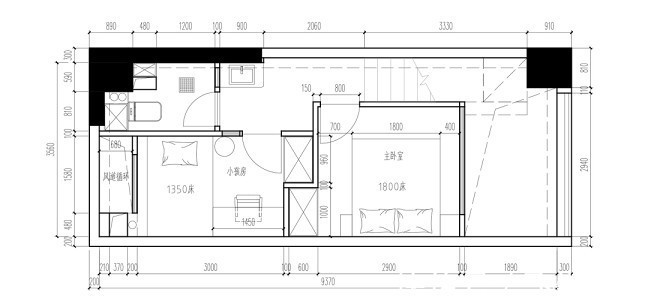
二层平面设计图
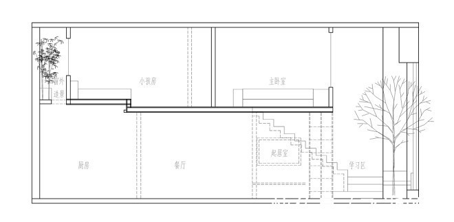
空间剖面图
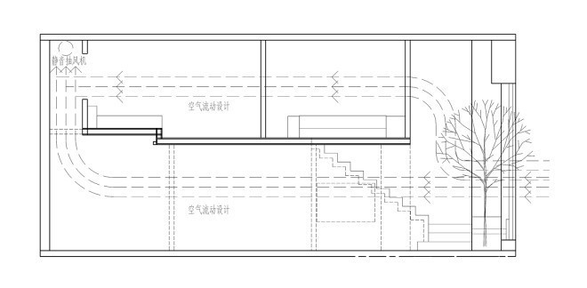
空气流动示意图
推荐阅读
- 文商旅|碧桂园文商旅长租公寓持续发展,为城市青年带来更舒适居住体验
- 王石|低价捡漏一套28㎡小公寓,花5万块整体改造,这效果都舍不得出租了
- 公积金|淄博公布2021年度“人才公寓”分配统计分析报告
- 校地|“拎包入住”!四川大学院士公寓交付使用
- 迷你|26㎡的迷你复式公寓,一楼装榻榻米房,二楼装地台床,够时尚!
- 装修|卧室不足4㎡的36㎡公寓,房主装修很认真,邻居看后好羡慕,超美
- 租赁|不限楼层高低,共享茶室可以开在大多数地方,写字楼和公寓都可以
- 化妆台|90后小姐姐独居生活,一个人住26㎡小公寓,太解压了,买个照装
- 自然之风|不怕房子小就怕你瞎搞!42㎡单身公寓,装出大户型的既视感!
- 广西南宁|流拍!广西南宁江南区一套住宅拍卖失败,83万没人要!
