客厅|她把32㎡的老屋,改成「复古洋房+大庭院」,一家三口住很幸福!
导语:这是一套位于上海老房子,准确地说它还算不上是“一套房子”。因为,房子在改造前,其实是某个老式别墅的一楼客厅加附赠的院子。屋主为了孩子上学,便买下了“这一部分”,装修好后完美逆袭「复古洋房 大庭院」,一起来看看吧!本期案例,实用面积约32㎡,层高约3.3米,房子的整体装修风格为简约复古风,非常契合上海老城区的气质。再加上一个约20㎡的院子,着实让我们被惊艳到了,给人一种岁月静好的感觉!
“装修不仅是体力活,更是技术活。”本期案例就很好地诠释了这句话。因为这个户型算不上真正意义上的房子,改造前室内部分只是一个客厅,设计师需要重新规划功能和格局。尤其像厨房和卫生间,管道都需要重新铺设,比较麻烦。
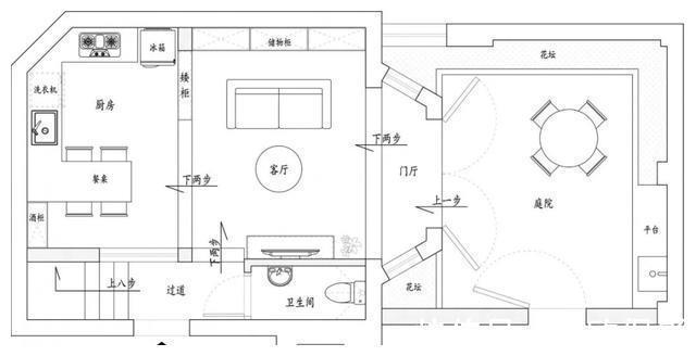
//装修亮点//为了将最大化空间利用率,设计师对整个房间进行了前期勘查,发现地下有一个将近60cm的通风架空层。如果将这一部分高度利用上,层高就能达到3.9m,同时可以做复式结构。一楼:①客厅挑高设计,大气通透;②客厅内做整面书柜墙,颜值高又实用;③抬高门厅地面,合理划分屋内、屋外空间;④U型厨房设计,动线合理流畅。
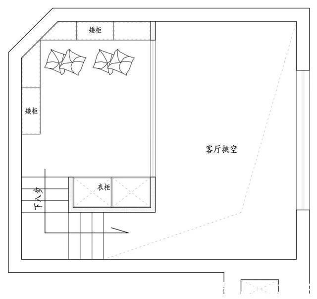
▲一楼装修平面图二楼:①从厨房2.1m处做夹层,隔出卧室空间;②卧室内做衣柜、矮柜,提升收纳能力。
▲二楼装修平面图想要优雅的生活,就需要适当地做减法。屋主一家人其实对装修风格没有特定的要求,只希望改造后的房子能契合老城区的氛围,简单温馨就很好。所以,设计师在装修上,遵循了「减法原则」,最终营造出自然不造作的整体形象。
▲客厅实拍图客厅做了挑高的设计,给人一种通透大气的感觉。沙发后的书柜墙是整屋的一大亮点,高度达到了3.6m,散发着不凡的复古气息。
▲客厅实拍图为了让书柜的层次看起来更加丰富,设计师做了三种不同的展现方式:①下方做了白色柜门,以收纳功能为主;②中间做开放式设计,用来摆放书籍;③上方做了透明玻璃门,可以放一些手办收藏,又能防止落灰。
▲客厅实拍图设计师在书柜的玻璃柜门下,做了一排黑色的滑轨,用来稳固梯子。这样屋主在使用梯子时,会更加安全。
▲客厅实拍图在客厅与厨房的交界处,我们可以看到四格矮柜,既能收纳一些孩子的玩具,又能合理划分开两个不同的空间。
▲客厅实拍图客厅旁边的入户门厅,更像是一个小型阳台。设计师抬高门厅地面,并在上面铺设地板,屋主一家人可以直接坐在上面,享受居家的惬意时光。
▲客厅实拍图厨房和餐厅在同一个空间里,选择了半开放式设计,通透性更强。厨房的格局为U型结构,并在中间增加了洗衣区,日常使用会更加方便。
推荐阅读
- 屋主|56㎡小户型老房改造,小而美的设计!
- 现代风|168㎡现代风,带着浓郁的归属感与愉悦感
- 深色|155㎡简约风,承载着三代人的生活,不花哨让家务少一半
- 混淆感|146㎡北欧经典白色三居室,诠释令人心醉的优雅
- 饱和度|173㎡轻奢新中式,古典和现代的碰撞,唯美浪漫!
- 背景墙|97㎡现代风,以时尚打造空间,以新颖突出特点
- 客厅|参观向华强和陈岚的豪宅,房子层高太矮了,住着不压抑吗
- 地板|160㎡四居室,玄关比我家卧室都大,这才是真正的低调奢华有内涵
- 棚户区改造|开盘预告|合肥又有6盘要加推,均价1.39-2.54万/㎡全都有
- 小房间|参观140㎡大婚房,朋友都夸餐边柜有档次,我却更喜欢主卧的飘窗
