客厅|年轻夫妇买下30㎡公寓,改出超美观景客厅和大卧室,太有品味了!
白色,一直以来都是时尚圈的宠儿,百搭所有颜色,且不容易过时!当纯粹的白色,和低调的浅灰色相遇,将碰撞出高级又温柔的设计感。本期,甜茶为大家分享的家装案例,坐标乌克兰,使用面积约30㎡。屋主是一对年轻的夫妇,青睐极简的装修风格。全屋功能齐全,配色简洁、线条硬朗,“白 灰 原木”三种颜色相互穿插,高级感呼之欲出。
▲装修实拍图//设计亮点//①入户玄关做“嵌入式高柜 穿衣镜”,方便屋主出门前整理仪容;②开放式厨房设计,空间通透,延伸出吧台,增加餐厅的功能;③客厅地面抬高,和厨房形成视觉差,进行空间区分。
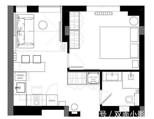
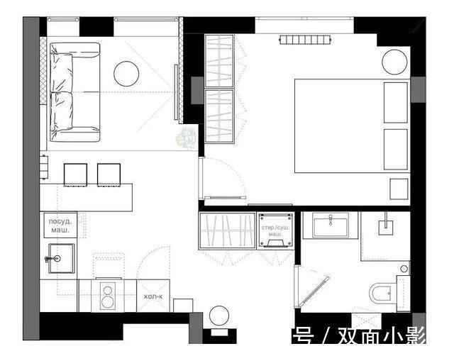
▲装修平面图||小巧简约的玄关,功能丰富玄关,作为进门的第一印象,对全屋的装修效果起着很重要的影响。在本期案例中,虽然玄关的空间非常小巧,但依然兼具了颜值和实用性。进门的一侧,因为承重墙的结构,形成了凹陷的空间,正好用来放置换鞋凳和杂物篮。
▲玄关实拍图入户门的正对面,是卧室的墙,设计师做了满墙的收纳柜,色彩与四周的墙漆保持一致,整体性更强。玄关收纳柜共四扇门,其中一扇替换成了穿衣镜,既方便了屋主日常整理仪容,又能从视觉上提升空间感。
▲玄关实拍图||开放式厨房,空间透光性极佳厨房的空间比较小,所以屋主选择了开放式设计。白色的橱柜搭配原木色的吊柜,简单清新,很好地提升了屋内的储物能力。
▲厨房实拍图冰箱和烤箱都规划在了厨房内,并做了嵌入式设计,既节省了空间,又能营造出整洁统一的视觉效果。厨房的功能主要以西厨为主,一般常用的食材烹饪都靠烤箱来实现,所以不用担心油烟问题。
▲厨房实拍图||厨房柜格延伸出餐桌,简洁实用设计师从厨房的柜格处,延伸出餐桌,可满足日常用餐需求。餐桌的台面是白色大理石材质,搭配黑色餐椅,并辅以绿色吊灯点缀,营造浪漫的用餐氛围。
▲餐厅实拍图餐桌既是橱柜功能的延伸,也是厨房与客厅之间的隔断。平时,屋主如果有需求,还可以在这里办公,非常方便。
▲餐厅实拍图||客厅地面抬高,营造独立的休闲空间客厅、厨房和餐厅在同一个空间内,整体视觉感很通透。不过,屋主想要将客厅打造为一个独立的休闲空间,于是抬高地面,利用视觉高度差,将客厅与餐厨进行区分。
▲客厅实拍图客厅地面抬高之后,层高相对变矮了一些,所以不太适合做大的吊灯。于是,设计师取消了客厅的主灯,并用小型白色筒灯代替,简约又有质感,光源也更加丰富。
▲客厅实拍图一字形灰白色双人沙发,搭配薄荷蓝格拉登茶几,营造出清爽大方的家居氛围。
推荐阅读
- 客厅|参观向华强和陈岚的豪宅,房子层高太矮了,住着不压抑吗
- |73㎡复古风两居室,年轻夫妻的高品质生活
- 亮点|等了6个月终于能晒晒新房了,都挺满意的,客厅是最大的亮点
- 庭院|取消客厅三件套,只摆一张大长桌,79㎡的家简洁质朴,太满意了
- 杭州|专家:生育率低是年轻人结婚成本太高!终于有人说到点子上了
- 房价|厦门房价那么高,年轻人怎么在厦门买房?
- x2|三层现代风格别墅 140平米,清新脱俗,是当下年轻人最喜欢的设计
- 餐厅|这套新房真有创意,客厅改主卧,电视背景墙后面设吧台!
- 装修|越来越多人阳台不装推拉门了,如今流行将阳台包进客厅,太聪明了
- 客厅|有钱人从不在家里放这4样东西,暗喻越住越穷,有钱人都会避开
