收纳|40㎡小户型逆袭两室两厅,还有衣帽间和办公区,也太能装了吧!
在大部分人的印象中,40㎡的房子等于生活空间拥挤,更无法兼具通透性和收纳性。但在本期案例中,以上问题居然全部解决了,40㎡的户型不仅逆袭两室两厅,还装下了衣帽间和办公区,一起来看看吧!本期,甜茶为大家分享的家装案例,坐标台湾省,实用面积约40㎡。整屋配色以“纯白 原木 抹茶绿”为主,清新舒适;卧室区域划分为上下两层,有效提升空间利用率。
▲装修实拍图//设计亮点//屋主为三口之家,对居住的要求以简约开阔为主,希望有独立的办公学习空间。在和设计师进行几轮沟通后,确定了如下装修方案:①客餐厨做一体式设计,视觉感开阔通透;②原卧室和卫生间区域,划分为上下两层,提升功能性;③一层楼梯下方区域,规划工作区,满足居家办公的需求;④二层卧室侧面做玻璃隔断,采光通透性更好。
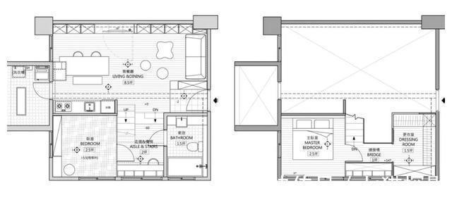
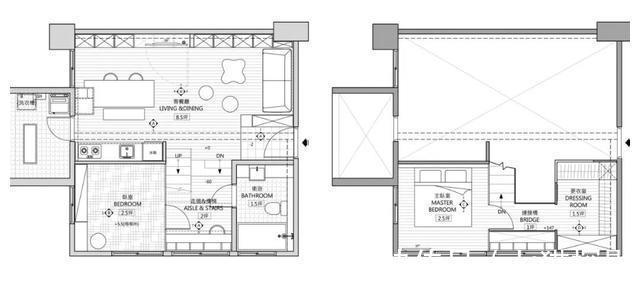
▲装修平面图设计师将整个房子一分为二:①客餐厨区域为主要的生活动区,为了减少压抑感,只做了一层设计;②原卧室和卫生间区域分隔为上下两层,有木质楼梯进行衔接,中间的过渡地方做工作区和书架,二层增加主卧和衣帽间。生活动线顺畅合理,榨干每一寸空间!
▲装修实拍图||玄关:小巧紧凑,功能合理在原户型中,其实是没有玄关的,设计师用一组收纳柜,分隔出了玄关区域。同时,为了更好地划分玄关与客餐厨区域,玄关地面采用了墨绿色的地砖,与室内原木地板形成了视觉上的反差。玄关柜的设计,也非常有特点,分为上中下三个部分:①下方为开放式鞋柜,方便拿取;②中间悬空,可为玄关引入自然光;③上方为封闭式收纳柜,用于杂物收纳。
▲玄关实拍图||客餐厅:一体式设计,抹茶配色清新通透客厅和餐厅做了一体式设计,打通原封闭式格局,增加空间的互动性。走进整个区域,首先会被清新的抹茶绿色所吸引,给人一种非常放松的感觉。
▲客餐厅实拍图设计师利用客餐厅内的一整面墙,做了满墙收纳柜,并将电视机嵌入其中,视觉效果整洁大气。
▲客餐厅实拍图客餐厅这组收纳柜由两种柜子组成,一种是开放式柜格,可摆放书籍和装饰品;另一种则带柜门,用于杂物收纳,所有柜门均采用无拉手设计,轻轻按压柜门即可打开,非常方便。
▲客餐厅实拍图餐厅内简单摆放了一张四人位餐桌,靠墙摆放,更节省室内空间。餐桌面和餐椅的颜色,与柜子保持一致,均为抹茶绿,可保持视觉上的统一性。
▲餐厅实拍图||厨房:开放式设计,动线合理厨房与餐厅相邻,是一字型开放式格局,其配色以纯白为主,搭配黑色大理石台面,干净整洁易打理。
▲厨房实拍图为了提升空间利用率,厨房内的所有家电,都做了嵌入式设计。小小的厨房空间,将冰箱、蒸烤箱、微波炉等全部装下,可满足一家人的烹饪需求。
推荐阅读
- 屋主|56㎡小户型老房改造,小而美的设计!
- 现代风|168㎡现代风,带着浓郁的归属感与愉悦感
- 深色|155㎡简约风,承载着三代人的生活,不花哨让家务少一半
- 混淆感|146㎡北欧经典白色三居室,诠释令人心醉的优雅
- 饱和度|173㎡轻奢新中式,古典和现代的碰撞,唯美浪漫!
- 小钱|游点好笑!收手机的新方式,一抓一个准!这老师怕是柯南看多了?
- 背景墙|97㎡现代风,以时尚打造空间,以新颖突出特点
- 地板|160㎡四居室,玄关比我家卧室都大,这才是真正的低调奢华有内涵
- 公示|一处体育中心项目、一处小型口袋公园!市北两项目规划公示,配套升级
- 碧桂园|小城市的房住不炒,遇上返乡置业
