一日三餐|80㎡北欧风用简洁的硬装,搭配北欧原木风格的家具
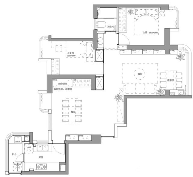
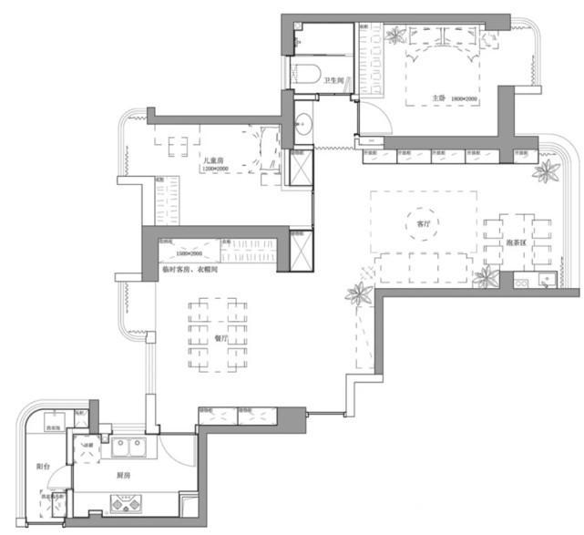
本案例面积80㎡,格局为两室两厅,设计风格为北欧风格。用简洁的硬装,搭配北欧原木风格的家具,同时采用了比较多的装饰画和绿植来丰富空间环境。客厅安装了投影仪,打造出一个舒适的家庭影院。而阳台设计成了品茶区,有效地提高了生活质量。在色彩上选用了较为清新的颜色,给人带来舒适感。
客厅是我们整个家中需要去重点做的地方,因为客厅是最为重要的场所,代表着我们整个家庭的整体印象。很多人都希望将客厅装修的更好一些,但是一不注意就会用力过猛,犯了一些不该有的错误!
??
??
一整排矮柜取代了传统的电视柜,收纳性更强,刷白的电视墙刚好成了投影仪的幕布。
??
??
客厅,沙发背景墙以缤纷的挂画装点,浅灰色的布艺沙发配以焦糖色及灰黑白几何抱枕,与挂画色调巧妙呼应,点缀得恰到好处。
【 一日三餐|80㎡北欧风用简洁的硬装,搭配北欧原木风格的家具】卧室的整体设计是比较通透和明亮的,地板壁纸的装修和家具都不要那么的繁琐复杂,装饰品也要简单大气.主要以实用功能为主。
??
??
蓝+灰色的床品,与背景墙上抽象的挂画呼应。浅蓝色的窗帘,木色的家具,冷暖对比,带来视觉上的愉悦
??
??
主卧以蓝色和白色为主调,辅以低调的浅灰,给人一种静谧悠然的感觉。
??
??
儿童房墙面刷不规则形状的黑板墙,既装饰了墙面,也满足了小朋友可以随时涂涂画画的需求。
有些家庭受制于户型,单独设定餐厅空间比较浪费,这时不妨考虑卡座餐厅,除了一日三餐,还多了个享受下午茶的好地方。卡座餐厅可以搭配两张餐椅,一字型的卡座餐厅适合长方形餐桌,一侧座位是沙发座或者柜子,还能增加收纳空间。
??
??
白色的餐边柜作为补充收纳,方便存取常用物品。木质餐桌、装饰摆件及花束加以装饰,让空间看起来更丰富。
??
??
餐厅以原木色和白色为基调,辅以蓝、灰及清新的绿植进行点缀,营造温馨舒适的用餐氛围。
想要家不被邻居一览而光就要设置玄关,玄关是外界和屋内的分界线,也是保护家里隐私的屏障,也可以增加家里的视觉面积。玄关是用来放置我们的衣物、鞋子和钥匙等零碎东西的地方,所以在设计的时候要考虑这些功能。
??
??
玄关设置木质矮柜,不仅满足了鞋子的收纳,还可以摆放装饰画及盆景,丰富的软装让这个家增添了不少温度。
??
??
【房天下】白色、灰色、木色、绿色、蓝色等,一眼过去,看到的颜色还是很多,但是这么多颜色搭配在一起不仅不会很缭乱,反倒给人一种很清新的感觉。
推荐阅读
- 屋主|56㎡小户型老房改造,小而美的设计!
- 现代风|168㎡现代风,带着浓郁的归属感与愉悦感
- 深色|155㎡简约风,承载着三代人的生活,不花哨让家务少一半
- 混淆感|146㎡北欧经典白色三居室,诠释令人心醉的优雅
- 饱和度|173㎡轻奢新中式,古典和现代的碰撞,唯美浪漫!
- 背景墙|97㎡现代风,以时尚打造空间,以新颖突出特点
- 地板|160㎡四居室,玄关比我家卧室都大,这才是真正的低调奢华有内涵
- 长沙|本周末长沙预计2项目开盘!北二环旁毛坯盘推新
- 公示|一处体育中心项目、一处小型口袋公园!市北两项目规划公示,配套升级
- 棚户区改造|开盘预告|合肥又有6盘要加推,均价1.39-2.54万/㎡全都有
