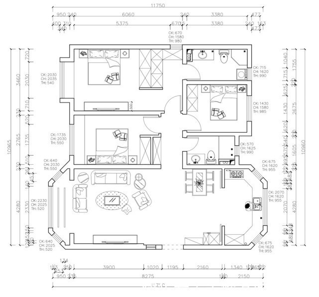
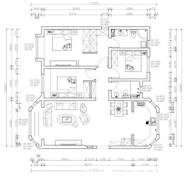
动线|150平现代三居室将走道做成u型墙体,到处都是收纳
业主为一家三口,男主人在外地工作,女主人是医务人员,女儿国外留学,由于家人聚少离多,所以希望家可以温馨舒适,同时增加储物空间。本案户型方正,南北通透,格局上只做细微调整。主卧卫门口对着主卧的床,设计师利用L型衣帽柜做隔断,区分空间且提升储物功能。次卧通过对墙体的改造将走道做成u型墙体,增加储物空间的同时也不会使走道显得狭窄
客厅装修最重要的是采光和室内布局。客厅装修不仅要有充足的采光和亮眼的墙壁,而且还要有巧妙的空间布局。
??
??
客厅主色调为米黄色,视觉上舒适温馨,仿古美式吊灯、壁灯让空间氛围更加稳重。佐以水蓝色单人美式老虎椅,是空间冷与暖的碰撞。
??
??
电视背景墙采用石膏线圈边,墙面色彩明暗度的差别使得空间层次感增加。软装配饰中,窗纱是日常易忽略的细节。它可以给居室增添温磬浪漫的氛围,透气通风、采光柔和的特性,保护家人皮肤免受紫外线的灼伤的同时,享受自然光的沐浴。
对于卧室来说,我们家家户户生活中最不能少了,卧室的功能主要是睡眠休息,属私人空间,不向客人开放,所以卧室的私密和温馨是我们装修时需要注意的。
??
??
卧室的灯光布置采用主光源与装饰性照明相结合,主光源负责卧室日常的起居需要,装饰性照明——筒灯可烘托出浪漫温馨的氛围。卧室色调为浅色系,灯光的反射效果会更完美,微弱光线呈现一种柔和、舒缓的感觉。
??
??
飘窗可以说是家里最浪漫的一处。设计师巧妙运用飘窗柜的设计,储物与休闲区域结合,慵懒的午后、窗外宜人的风景、一本书、一壶茶.....enjoyyourlife!
餐厅,作为重要的居家空间,不可避免的要经常招待客人,所以,餐厅的每一处细节也是至关重要。关于餐厅的设计,不同的户型,不同的设计,不同的软装搭配都会有不同的餐厅的设计,但是最重要的是要让餐厅设计和整体的房间设计浑然一体,并且美观又实用!
??
??
过道地面的拼花,划分客餐厅区域,偏窄偏长的过道,不宜采用过于复杂的铺贴方案,应用简单的波打线,就能带来大气明朗效果。
厨房装修注意哪些?厨房装修最重要的是先考虑布局,也就是厨房动线,按做菜顺序:从冰箱拿取食材、水槽洗菜、切菜、备菜、炒菜、上菜这个顺序越顺手越好,也就是冰箱、水槽、台面、灶具按顺序排列。厨房装修注意了这个基础的布局细节才能把厨房装修好。
??
??
橱柜的设计须结合动线,简单来说,就是洗菜?→?处理食材?→?烹饪这个运动过程中经过的线路,好的动线会让下厨成为一种享受
??
??
厨房的外挂推拉门,节省占地空间,简单的花纹装饰也起到美化作用,厨房采用白色定制橱柜,洁净明亮
?
??
??
【 动线|150平现代三居室将走道做成u型墙体,到处都是收纳】
推荐阅读
- 卫生间|129平现代美式三居室,打造出一个舒适又温馨的美式家
- 三居室|118平现代风三居室,一个简单而纯粹还原生活色彩的家
- 郑州|买房月供曝光!郑州最新平均工资8694元,撑得起房贷么?
- 石家庄|144平的面积,无人值守棋牌室,这是如何做到的?
- 简单感|现实的平衡取舍,才是生活之道!143平现代风格设计欣赏!
- 她家148平米,进门就被玄关迷住,不做吊顶跟背景墙,阳台超漂亮
- 修建|精选10套三层户型图纸,占地面积均不足百平,尤其适合新农村修建
- 南通|拍卖成功!江苏南通一处197平住宅192万成交!
- 购房置业|农村建新房就选这套四层别墅,占地100多平,8间卧室人人都有地睡
- 现代简约|青岛房价不是低洼地了,房价高达1.6万一平
