造型|两栋开间尺寸接近的四层别墅,第二栋造型真的很美!
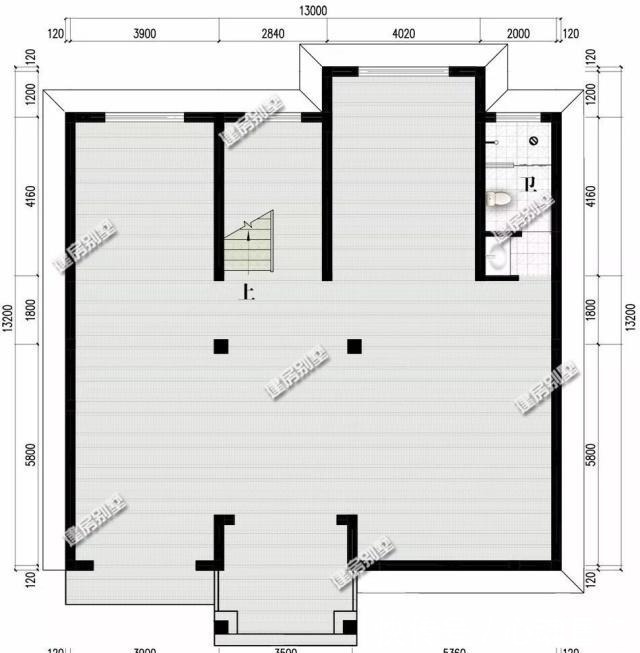
两栋开间尺寸接近的四层别墅,第二栋造型真的很美。我们每个人都将建房子和买房子当成是自己人生中的大事件,所以都是比较的谨慎,一点也不会马虎,尤其是现在农村建房子管的这么严,这次建房很有可能就是唯一的一次了,更需要好好的规划一下。第一栋四层别墅:建房尺寸是13×13.2米,带架空层的户型,墙面主要用面砖和真石漆装饰,屋面盖以红色的琉璃瓦。
室内布局说明:架空层主要是用来做车库和储物间;一层设计有一室两厅一厨三卫,主卧带独卫,另外休闲娱乐室还配有独卫,复式客厅;二层设计有三室一厅三卫,每间卧室里面都搭配了独卫,室外生活空间多;三层配有三间卧室,室外是观景露台。



第二栋四层别墅:建房尺寸是13×11.6米,墙面主要用真石漆涂料装饰,屋面盖以红色的琉璃瓦,这款户型很大的一个特点就是室外阳台比较多,所以外观造型上看起来非常的美观。
室内布局说明:首层配有一室两厅一厨一卫,入户就有一个小堂屋,满足很多地方建房要有堂屋的风俗,客厅是挑空的;二层配有三室一厅三卫,室外设以生活阳台;三层配有四间卧室,其中主卧带独卫和活动厅;顶层设计有三间卧室备用,室外是休闲露台。


【 造型|两栋开间尺寸接近的四层别墅,第二栋造型真的很美!】
两栋别墅的外观都是非常靓丽的,不管是建在哪里的农村,肯定都是很难超越的存在,在老家建一栋这样的房子,未来的几十年,上百年都不用操心了。
推荐阅读
- 施工|面宽均为12米的两栋自建房,简单施工易,造价25万上下
- 深圳市|12.8×13.2米农村别墅,有好看大气的造型,采光还挺好!
- 建筑|小开间农村自建房,5款开间10米的农村别墅户型,好看又实用!
- 衣帽间|退休阿姨晒出自己的新家装修全屋大面积护墙板造型,温馨有个性
- 客厅|带挑空客厅设计的两栋农村别墅,45万左右可建一栋,完工效果好
- 农村|带柴火灶的农村别墅,外观气派十足,整体造型别致美观。
- 实用|欧式两层别墅,整体设计非常实用,造型精美,符合现代人的审美。
- 大马士革|北欧战斧,造型张狂,细节精致,手感扎实,就是舍不得用,别问,问就是贵!
- 海口|昌茂·春天里调整12#楼户型及立面造型
- 餐厅|等再买房,电视墙一定不做造型,学她家用乳胶漆刷图案,太漂亮了
