俊学院145㎡现代风格,金典时尚潮流
案例小区:俊学院
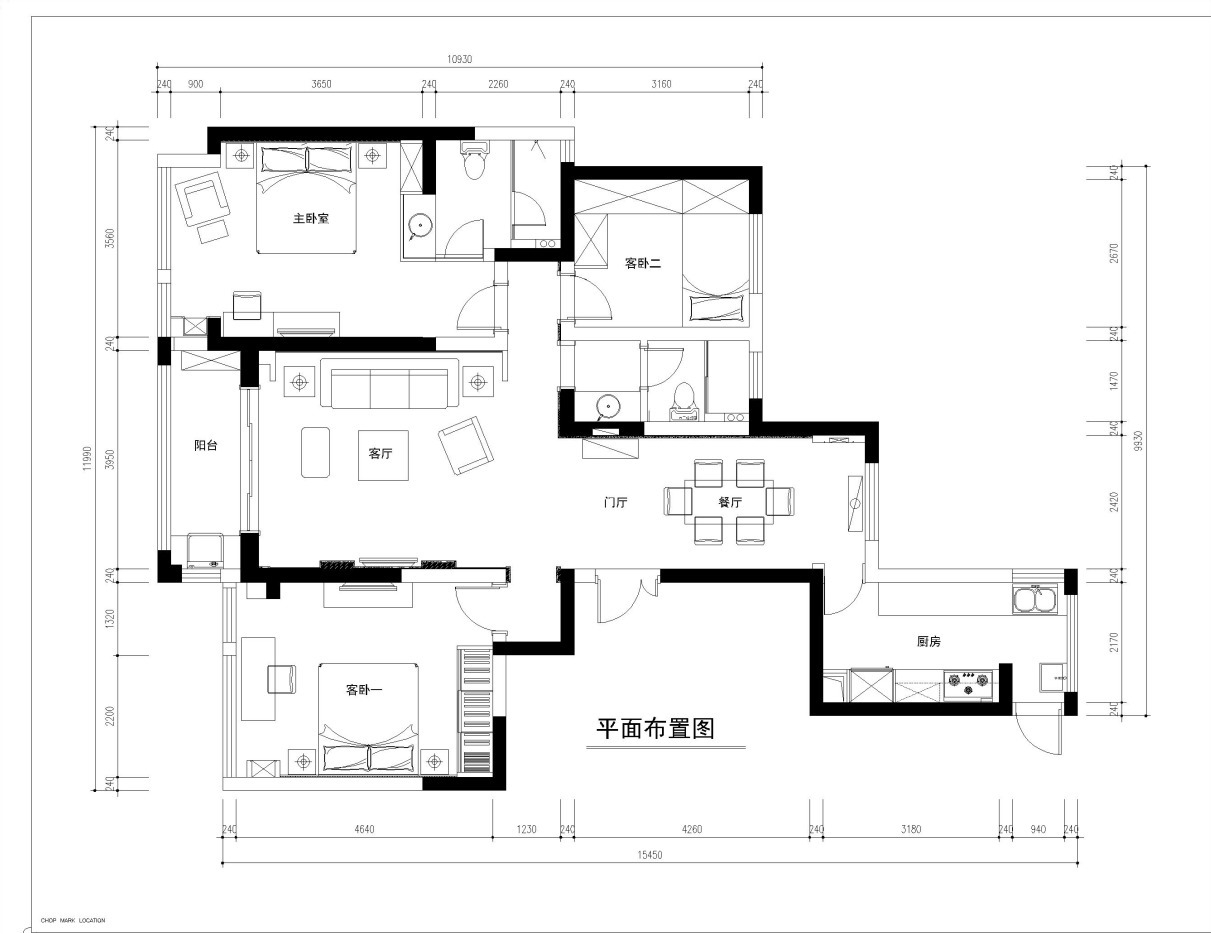
房屋面积:145㎡
风格:现代风格


客厅效果图
现代风格比较注重空间的使用功能,废弃繁琐的装饰,室内布置也会按功能区分的原则进行,家具色彩造型非常潮流,以个性化、简单化装修方式打造舒适家居。

餐厅效果图
相对独立的餐厅空间位于客厅的一侧,造型简洁的白色餐桌,搭配几把灰白色的餐桌永远是如此的经典。

卧室效果图
卧室简洁的吊顶设计,温馨舒适的休息空间让人感觉格外的舒服。
【俊学院145㎡现代风格,金典时尚潮流】好啦,本期的鲁班案例分享就到此结束了,小伙伴们下期再见,拜拜~
推荐阅读
- 校地|“拎包入住”!四川大学院士公寓交付使用
- 房企|冯俊:房企转型发展的三个原则与五项任务
- 价格|大涨1457元/平!曾被称为“价格洼地”的后湖也高攀不起?
- 买家具|145㎡装修一切从简,精打细算前后花了不到10万,效果却挺温馨的!
- 俊峰|俊峰·山万里丨万元奖励 全城案名征集
- 合约销售|正荣地产:2021年合约销售金额约1456.43亿元
- 主卧|书房打掉给儿子做衣帽间,主卧的衣帽间太聪明了!145㎡让人羡慕
- 所有权|广东省潮州市一145平房产将拍卖,以48万元起拍,这房咋样
- 销售额|刚刚!2021昆明房企销售排行榜:俊融万前三!龙湖提升9个名次!
- 丽水|145㎡,与世隔绝感的高级灰色美学
