玄关柜|68平的精致两居室,独居小妹妹真懂生活,双面柜的设计非常巧妙!
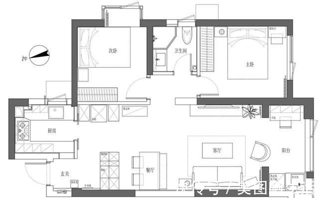
这是一套68平(使用面积)的户型,装修不含家电就花了近30万,房子位于深圳,业主从事教育行业,典型了文艺活泼小美女。她向往着自由、舒适、实用的家具环境,喜欢精致的生活方式,希望未来的新家能够满足基本生活需求外,还要装下自己的兴趣爱好。


玄关面积非常有限,不足4平的空间需要容纳所有的玄关功能,隔断式的设计有助于室内私密性的增强,为了提升室内的采光,将柜体部分结构设计成镂空造型。
穿衣镜并未选择规则的造型,搭配上一侧的金属挂钩,体现出空间活跃的氛围,同时又满足了进出门收纳及仪容整理的需求。
再来看看这款部分结构为镂空的玄关柜,有效的改善了空间的通透性及采光需求。
阳台纳入到客厅,扩大了室内的面积,又能改善客厅区域的采光,原木色的地板+编织的地毯+无主灯的设计,彰显出空间清新又简约的颜值效果。
都说客厅区域的背景墙最难设计,而她家的背景墙没有任何的装饰,也没有复杂的造型,纯白的墙面反而觉得更加时尚,军绿色的沙发配上原木色的茶几,营造出一幅复古又清新的文艺范。 
沙发一侧的壁灯成为了墙面唯一的装饰,可调节的安装方式,便于日后照明的灵活使用,底部办法的书架同时又兼备零食收纳的功能,实用性高、设计感强。
电视背景墙与沙发背景墙一样都为做任何的修饰,因此电视成为了核心,观影的时候显得更加轻松。
电视背景墙一侧的阳台区域,摆放了一张小巧的原木书桌,顶部安装的置物板正好用来摆放平时收藏的一些手办。
阳台的另一侧设计了吊柜+洗手池+地柜,靠近客厅墙垛的一侧预留出了洗衣机和烘干机的位置,墙垛的尺寸刚好遮挡住洗衣机,室内看向阳台会显得整洁。 【 玄关柜|68平的精致两居室,独居小妹妹真懂生活,双面柜的设计非常巧妙!】
餐厅与客厅是互通的,餐桌餐椅都靠墙摆放,原木色的家具成为了室内的重点,餐边柜既是玄关柜,双面柜体的设计实现了一物多用的理念,和靠墙的成品柜搭配灵活增补餐区收纳
厨房设计成U型布局,冰箱布置在了门外的柜体内,嵌入式的摆放方式维持了立面的平整效果,双开的玻璃门既能阻止油烟的散漫,又不影响光线的穿透,台面设计成高差方式,更有利于日常烹饪活动的进行。
推荐阅读
- 餐边柜要做成什么样子才实用又好看看看这几款餐边柜设计
- 地板|160㎡四居室,玄关比我家卧室都大,这才是真正的低调奢华有内涵
- 床头柜|95后姑娘的“穷装”卧室火了,环保又精致,软装的力量真强大
- 卫生间|129平现代美式三居室,打造出一个舒适又温馨的美式家
- 三居室|118平现代风三居室,一个简单而纯粹还原生活色彩的家
- 置物区|全屋定制柜子时,记得把这3个柜子做到位,钱不白花用着也舒服!
- 郑州|买房月供曝光!郑州最新平均工资8694元,撑得起房贷么?
- 石家庄|144平的面积,无人值守棋牌室,这是如何做到的?
- 收纳|去邻居家参观才知道,卫生间不装柜子这样设计,防潮耐脏好清洁
- 小房间|参观140㎡大婚房,朋友都夸餐边柜有档次,我却更喜欢主卧的飘窗
