将时光碎片收集起来,在光影间,拼凑出让人踏实的安居之所
打开家门看到家人们的笑脸,闻到熟悉的饭香,听着电视里的新闻,生活就在这里落了根发了芽。每一个业主都对自己的家有着各种想法和要求,最重要的就是能够满足一家人的起居生活需求,让家人们可以过上更加舒适的生活,这也是家居改造最有意义的地方。

房屋户型:
三室
房屋面积
:234平方米
装修预算
:50万
设计师:
李文伟
主要建材
:线板、木皮、喷漆、大理石、黑铁漆、铁件、玻璃、木地板、壁纸

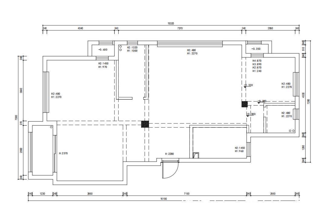
【户型图】


房屋户型结构比较周正,给了设计师比较大的改造空间。设计师巧妙地运用手法进行重新布局,规划更加合理的空间动线,还明确了空间的功能,确保了每一个房间的独立和私密,让一家人都能有自己的空间。

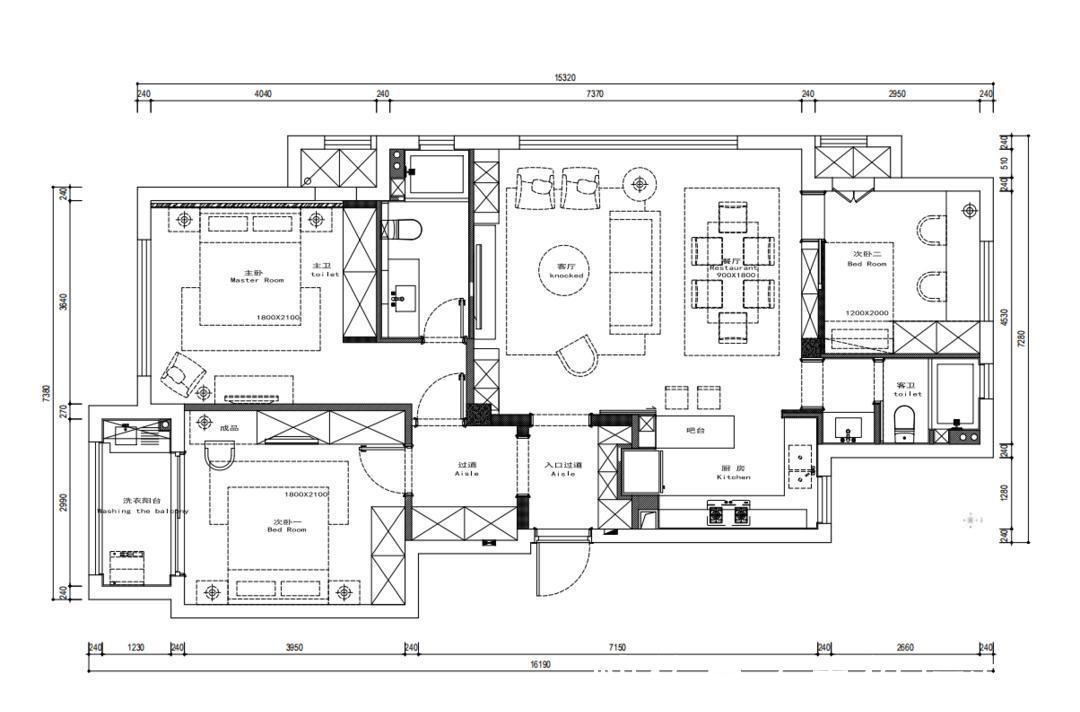
【玄关】


设计重点:经典黑白色勾勒空间
玄关改造之后增设了一整面的储物柜,打开门右手边就是暖白色的柜子,中间的凹槽可以摆放一些小取件,黑白色作为玄关的主色,勾勒出空间的简约流畅。左侧背景墙没有任何华丽的装饰,只悬挂了一幅艺术挂画,让空间不显单调。
【客厅】


设计重点:一体式布局更显空间宽敞
客厅主打的风格是自然简约,改造之后客厅和餐厅共享空间,提升了空间利用率。黑白色依旧作为空间的主色,在经典的配色中点缀着星星散散的明色,让空间变得更加丰富多彩。


电视背景墙两侧都是定制的暖白色储物柜,满足了客厅的收纳需求,也让客厅更多了实用的功能。复古砖和暖白色的柜子交相呼应,通过纹理的走向让背景墙也变得更加立体富有层次感。


在厨房也能看电视,让烹饪也变得不再无聊。

客厅的全景落地窗可以保证整个空间的采光,让客厅和餐厅都能变得更加敞亮大气。
【餐厅】


设计重点:多功能空间布局
餐厅位于客厅沙发后侧,简约的桌椅可以容纳多人同时就餐,背景墙是整面的置物柜,不仅可以收纳也能装饰。平时一家人也可以在这里聊天或者开个小会。
推荐阅读
- |最高暴涨70万!宁波二手房市场即将回暖?
- 武汉市自然资源和规划局|确定了!白沙洲将新添一所高中
- 限购|哈市125家房企将列入重点监管范围,详细名单→
- 物业管理|瞄准高估值,2000亿房企将分拆物业赴港上市!物管行业遇冷,这一"新物种"能否打破寒冬?
- 银行|如果出现大规模的房贷断供现象,银行和业主将两败俱伤
- 学区房|对于开发商,一旦你不懂这5大“潜规则”,买房成本将会增加20%!
- 购房置业|造纸业在北海铁山港区将再征地1405.2亩
- 房贷|房贷利息要降?市场将现长阳?!
- 多渠道|贵阳2022年将新开建8000套保障性租赁住房
- 装修|越来越多人阳台不装推拉门了,如今流行将阳台包进客厅,太聪明了
