寄语:
我所认为的家的最好的样子莫过于当你疲惫归来时,可以让你完全松弛下来,当然,它可以是精致的,风格化的,可以奉行主义的,但是最后一定是舒服的温暖的。这也是在装修过程中,我所奉行的“真理”。
对生活拥有太多的幻想,理想家的行进摸索就更艰难,找装修公司,接触设计师、做设计、挑选材料、开始装修、软装搭配等等,大家一起克服、发挥想象力。整个过程经历了疲惫妥协,但更多的是惊喜与成就感,所有的情绪夹杂着仿佛体验了一个微缩人生。
家是一个集体式生活空间,无论是大家还是小家我们都需要在这个过程互相了解彼此,学会平衡。通过各自喜好的了解,设计师帮我将需求喜好进行融合,如复古摩登、简洁现代等元素的相识,在一个空间里融合并避免突兀与矛盾,最终成为一个舒服的状态。
下面就带大家一起认识我的新家——
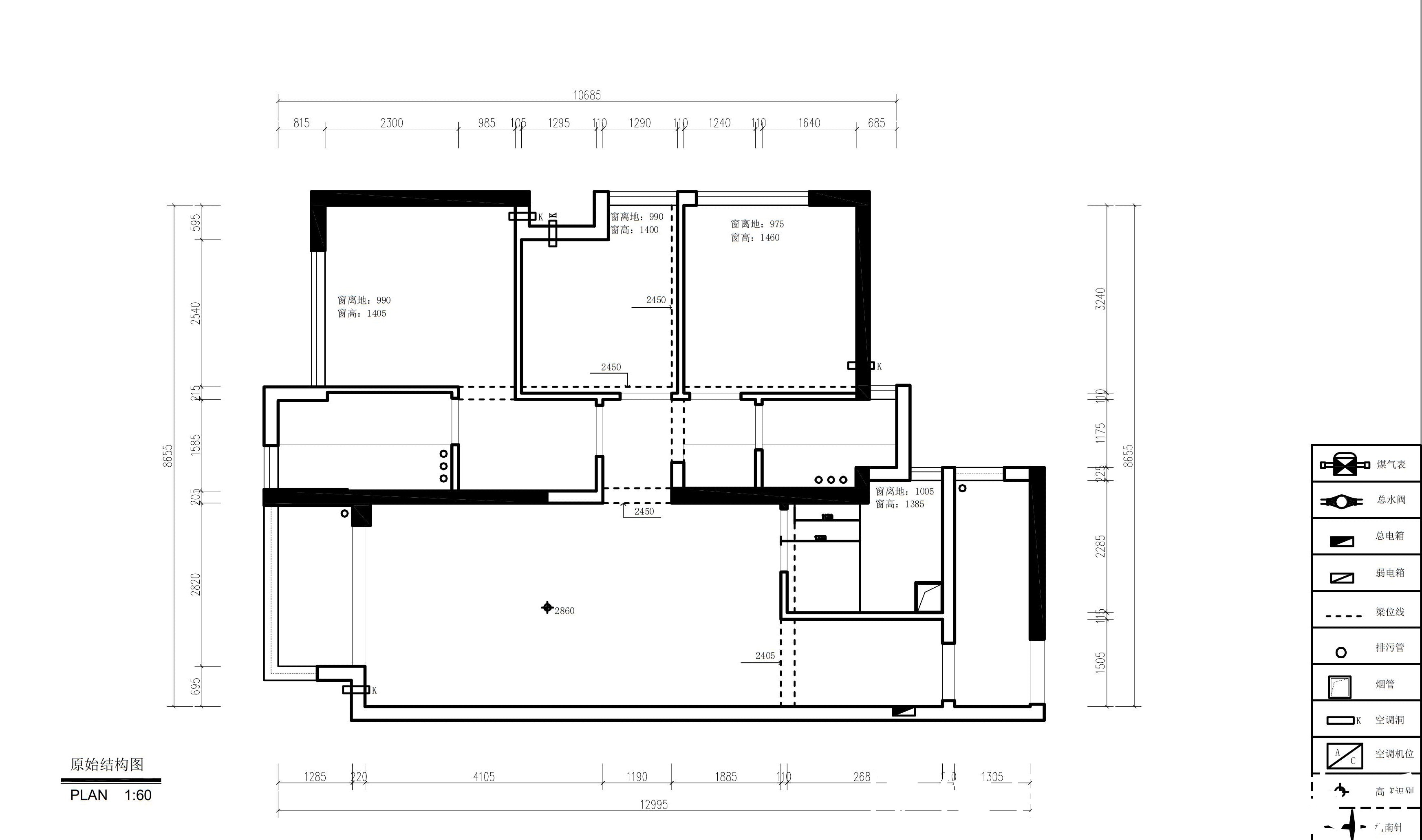
通过原始平面图可以看出,新家的整体户型比较方正,承重墙都处于大空间的间隔,户型可塑性也强,但也有缺点:
1、入门处独立储藏室与厨房的空间排列,造成玄关过道拥挤狭长;
【 过道|家是温柔的避风港,寒夜归来时的一盏灯,是记忆里的温存,放不下的牵挂。】2、餐厨空间过于紧凑。

基于装修成本考虑,原本就方正的空间没有过多改动,设计师通过餐厨空间的重点优化与丰富生活功能为重心:
1、封闭式储藏室,倚墙设计到顶,提供舒适的玄关环境;
2、隔墙开门洞,将原厨房与储藏室打通,把储藏室变为新厨房;
3、将原厨房隔墙拆除与餐厅连通,设计中岛台,置入冰箱,延伸厨房功能又丰富了生活的多样性;
4、餐边柜改设在过道边,减少过道的拥挤,避免开门见厅的弊端;
5、客厅阳台置入洗衣机,丰富生活阳台的功能,缩短生活动线。

现在,从进门区域给大家介绍一下我们的新家。
玄关
入户第一眼,整面墙的收纳柜,增加了储物空间,为进出门物品存放提供了方便。设计与门框完美衔接,搭配隐形把手,过道通畅无阻。原本素色的柜体,在离地1米处留空嵌入一个深色木纹框架,预留插座、嵌入灯带,还可以放钥匙等随手物品,或者摆上饰件(看我们小黄人的可可爱爱)点缀,让回家充满温馨感。

玄关柜底部也做了留空设计,采用感应灯带,避免回家摸黑,推开门就是暖暖的灯光。
底部留空常规都是放置常穿鞋子或者拖鞋,方便通风透气。但这次专门为我定制了两款小凳子,可以收纳于柜底,作为换鞋凳使用,又不多占用空间。

餐厅
由入室至阳台通铺大理石纹瓷砖,整体统一。穿过玄关来到餐厅,通透的视野透过客厅一直延伸到阳台上。整体为无吊顶+无主灯的设计,更显轻盈,雅致的白色空间以柔和的氛围灯烘托,这就是我充满亲切感的家。

由客厅望向餐厅,清晰的入户动线,干净简洁的软装布局,空间立体而敞亮。餐边柜嵌在过道旁,整洁清爽,与墙面完美融合,通过开放格的提亮,凸显层次感。

推荐阅读
- 春节|如果能重来,阳台一定“9不装”,并非迷信,是过来人的经验教训
- 施工者|不管家多大,装修时做好这12处细节,美观与舒适并存,幸福感提升
- 深色|155㎡简约风,承载着三代人的生活,不花哨让家务少一半
- 大悦城|家里这两个地方别漏了贴瓷砖,许多人为了省钱,入住就后悔了
- 灰尘|家中阳台不要装推拉门了,装这种更实用个性,不得不感叹太聪明了
- 心塞|5个月装修一套房,硬装让我喜出望外,结果家具一上全废了!心塞
- 住宅|现在买房,选“高层”还是“低层”好专家20年后差别很大
- 小钱|游点好笑!收手机的新方式,一抓一个准!这老师怕是柯南看多了?
- 家具|家具展厅30余万红木家具被盗,嫌疑人竟是高学历海外留学生
- 安置|上城区紫阳街道加速回迁安置 焕新美好家园
