地基|赚钱了,要回家盖一栋这样的别墅,带开放式车库,让邻里都来羡慕

赚钱了,要回家盖一栋这样的别墅,带开放式车库,让邻里都来羡慕!

11.3X13.6米农村小别墅,带开放式车库,关键还只要17万的造价,亲朋不来羡慕我都不信了!

今天小编跟大家带来的是一套农村自建别墅案例,这套别墅的占地面积尺寸为11.3×13.6米、占地面积:108.48平方米、建筑面积:224.18平方米、建筑高度:11.1米、建筑结构:砖混结构、毛坯造价:17万左右。

1、效果图

这是设计师出的效果图,看着图片后觉得有点偏暗,于是在建造的时候把主体色系调亮了一些!

这是调整之后的效果,是不是看上去要舒服很多!

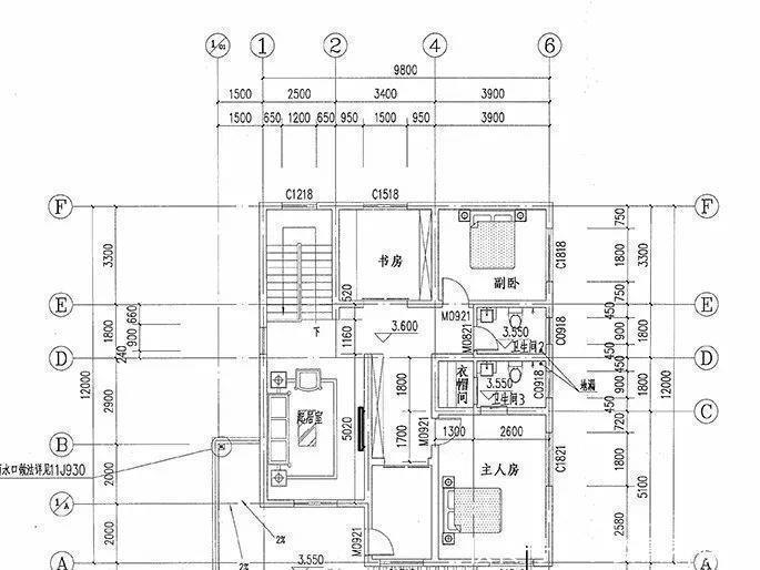
2、平面图

3、建造过程

出了图纸后,着手打地基,前面的一篇废墟,三个月后就盖起了一栋时尚美宅!

地基打好之后,就是回填工程,回填完毕后,开始砌一层的墙体。

一层建造完成后,就需要在楼板预埋水电及钢筋了,一层层蜘蛛网一样的,确保了建筑的牢固性。

经过大约45天左右的时间,主体建筑基本成型,现在还看不出效果来哦。

工人师傅正在对坡面屋顶进行放线支模工作。

外墙抹灰之后,把原本粗糙红砖墙面掩盖起来了,显得稍微干净了一些。

现在的墙面已经刷了真石漆,效果比起之前好多了吧,拆除脚手架后,开始着手安装门窗和阳台的外栏杆。

4、同款实景拍摄图

这是我们村另一个同款别墅,现在装修全部弄完了,入住半年多了,外墙颜色与我家稍有不同,但是外形几乎一模一样。

推荐阅读
- 装修|淋浴房还可以坐着洗澡,一开始很不理解,装修后才发现太实用了!
- 大悦城|家里这两个地方别漏了贴瓷砖,许多人为了省钱,入住就后悔了
- 贷款|5月起,“2道铁令”,今后这1种买房方式再也行不通了
- 灰尘|家中阳台不要装推拉门了,装这种更实用个性,不得不感叹太聪明了
- 心塞|5个月装修一套房,硬装让我喜出望外,结果家具一上全废了!心塞
- 管道|为什么说:再穷也不买二层?了解这些弊端之后,就知道多糟心了!
- 小钱|游点好笑!收手机的新方式,一抓一个准!这老师怕是柯南看多了?
- 集体经济|征拆赔款找,查了才知有这么“多”…
- 购房置业|上海女子拍下对楼住户家无敌露台,超大空间网友酸了:买房送操场
- 客厅|参观向华强和陈岚的豪宅,房子层高太矮了,住着不压抑吗
