
项目名称:广东汕尾钟家欧式别墅
图纸编号:1234
建筑面积:327㎡
基地面积:430㎡
占地面积:133㎡
建筑尺寸:13m×12m
建筑结构:框架结构
参考造价:32~43万元(不含室内装修费用)
别墅概况

总平面示意图
项目简介:
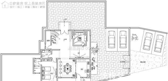
设计师根据业主提供的风水师建议,将厨房设在东南角的位置,围绕厨房设计餐厅;房屋入口在北侧,避免北侧与邻居家的距离过近的影响。
平面布局
户型概况:
3层/7室1厅4卫1厨1餐厅1储1阳台2露台

一层平面图
一层入口在北侧,通过L型院子缓解了与邻居家距离过于接近的尴尬。主要房间都面向南侧获得良好的采光。

二层平面图
【 自建房|占地133平方三层农村自建房,7卧室1挑空客厅4卫1大露台欣赏美景】二层的卧室全部南向采光,获得舒适的居住体验。同时为了增加空间的趣味性,用通高的设计手法,使得一层和二层能通过楼梯与客厅进行视线交流。
三层平面图
三层的卧室全部南向采光,获得良好的居住体验。东北侧的露台为家庭休闲聚会提供场所,打造舒适的居住体验。
造型设计



建筑整体呈现欧式风格,建筑师本着中西式结合的思路,搭配中式的白墙黑瓦进行设计,同时融合西方的门窗细部处理手法,展现一种中西结合的魅力。


院落空间非常充裕,既是家庭休闲聚会的娱乐场所,又是种植花木的雅兴之地。

东立面图
西立面图

南立面图

北立面图
推荐阅读
- 房产证|婚前财产婚内可以自行处理吗
- 中间商|出租房屋可以不用中介,打造自助门店,同样收租金
- 武汉市自然资源和规划局|确定了!白沙洲将新添一所高中
- 施工|面宽均为12米的两栋自建房,简单施工易,造价25万上下
- 建房子|面宽11米, 进深16.5米的农村三层别墅, 前后有花院还带车库, 完美!
- 修建|精选10套三层户型图纸,占地面积均不足百平,尤其适合新农村修建
- |龙吟师傅教你在卧室找到自己的桃花位
- 二手房|拖垮你的不是高房价和高压力,而是鸡毛蒜皮,不拘小节,更自由
- 全屋|日子过久了才发现,越简单自然的装修越让人迷恋,全屋看着真舒服!
- 爆炸事故|找熟人装修害死我了,20条教训只能自己扛着,后悔呀
