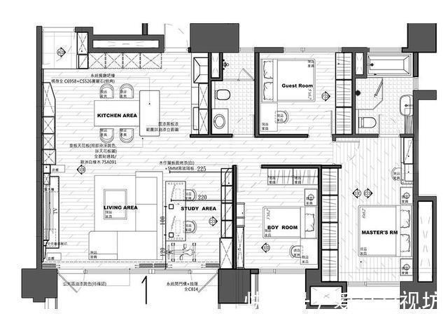
我个人很喜欢台式风格的装修,舒适、干净、内敛,这是台式风给人最大的印象,其实台式风和日式风格有很多相似的地方,都是追求自然、和谐,去繁就简,把人的需求和舒适度放在第一位。今天小编为大家带来的是一个清新原木系的台式风格装修案例,屋主是一家四口,他们喜爱开阔明亮的居家环境,所以大胆地将一间卧室拆掉,让空间和客厅合并起来,打造出现在非常流行的大横厅的效果,孩子们活动起来也会更加自由自在。话不多说,快跟随小编的步伐,一起来看看吧。01平面布置图

本案例户型3 1房2厅2卫,套内面积约99㎡,居住人数为2大2小。02玄关设计

经典的玄关设计,左手边是与餐边柜一体设计的收纳鞋柜,地面以材质的不同来区别功能区域,清雅的花砖纹路,让人一进门就感受到悠闲和放松。03客厅设计

悬吊式的整墙收纳柜,缓解了大面积柜体带来的体量感,原木 白在灰色墙面的衬托下,刚性而内敛,强化了空间的立体透视感。

放眼望去,整体空间简约、自然,没有一丝纷繁复杂的装饰,仅用质朴的色彩,再加上线条感极强的设计手法,简简单单就能打造出很有质感的家。

干净利落的线条感,让设计回归到需求本质,是主人生活习惯的完美展现,同时营造出高雅的生活氛围。大大的落地窗提供了无限的可能,晨风吹进客厅,泛起白纱,光影舞动,是原始的共鸣。倾斜而入的阳光肆无忌惮地洒落在了屋里,光影形成的层次和留白,让空间赋予了质朴的情绪。04餐厨设计
开放式的餐厨区,将入户鞋柜和餐边柜整合在一起,提供强大的收纳功能,将冰箱、烤箱等家电嵌入其中,实用又美观。中间位置配置岛台,既增加了操作台面,又让餐厨区形成了回字形的完美动线,让家人们的行动路线更加流畅自如。

以白色为主调,作为打造时尚优雅的背景,家具家饰也选择清浅淡雅的颜色,少量点缀亮眼的色彩,比如本案例的绿色和红色餐椅,这样做可以避免让繁复的元素形成空间的压迫感,可以让厨房、餐厅、客厅更加通透明亮。05书房设计

舍弃掉一间卧室,打造完全开放式的书房,同样的悬吊式抽屉柜 开放式层板架,间距不同的侧板,就好像跳动的音符,为空间带来一丝律动感。

开阔明亮的大横厅,这种格局的好处有很多,比如采光好,整体的通透感强,回字形的灵活动线,让你的家看起来大了一倍!

06卧室设计

推荐阅读
- 银行|请注意!今日起各地房贷利率普遍下降5个基点 业内预期:部分地区房贷利率或仍有下调空间
- 地板|160㎡四居室,玄关比我家卧室都大,这才是真正的低调奢华有内涵
- 缴存基数|@长春人 2022住房公积金缴存基数有调整 详解全在这
- 装修|空调外机万万不能这样挂墙,若不是师傅提醒,我家都装错了!
- 她家148平米,进门就被玄关迷住,不做吊顶跟背景墙,阳台超漂亮
- 薄荷蓝|走进她家,才知什么叫美观与实用并存,全屋温暖又清爽,太舒服了
- 购房置业|上半年能再买房吗?2个消息接踵而至,央媒定调,答案很明显
- 征地补偿|征地补偿有调整!长沙最新征地补偿标准公布
- 购房置业|央行今天下调房贷利率有三个不同之处,买房的好时机,还得再等等
- 限价|福州:人才限价商品住房上市交易限制期从10年调整为5年
