两栋开间尺寸接近的四层别墅,第二栋造型真的很美。我们每个人都将建房子和买房子当成是自己人生中的大事件,所以都是比较的谨慎,一点也不会马虎,尤其是现在农村建房子管的这么严,这次建房很有可能就是唯一的一次了,更需要好好的规划一下。第一栋四层别墅:建房尺寸是13×13.2米,带架空层的户型,墙面主要用面砖和真石漆装饰,屋面盖以红色的琉璃瓦。

室内布局说明:架空层主要是用来做车库和储物间;一层设计有一室两厅一厨三卫,主卧带独卫,另外休闲娱乐室还配有独卫,复式客厅;二层设计有三室一厅三卫,每间卧室里面都搭配了独卫,室外生活空间多;三层配有三间卧室,室外是观景露台。




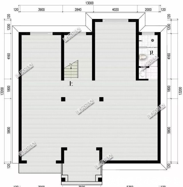
第二栋四层别墅:建房尺寸是13×11.6米,墙面主要用真石漆涂料装饰,屋面盖以红色的琉璃瓦,这款户型很大的一个特点就是室外阳台比较多,所以外观造型上看起来非常的美观。

室内布局说明:首层配有一室两厅一厨一卫,入户就有一个小堂屋,满足很多地方建房要有堂屋的风俗,客厅是挑空的;二层配有三室一厅三卫,室外设以生活阳台;三层配有四间卧室,其中主卧带独卫和活动厅;顶层设计有三间卧室备用,室外是休闲露台。

【 两厅|两栋开间尺寸接近的四层别墅,第二栋造型真的很美!】



两栋别墅的外观都是非常靓丽的,不管是建在哪里的农村,肯定都是很难超越的存在,在老家建一栋这样的房子,未来的几十年,上百年都不用操心了。
推荐阅读
- 层高|5款四开间一层自建房,不大不小,要的就是住着舒服
- 石膏线|131平4+1室两厅一厨两卫设计,独特优雅的设计感
- 高跟鞋|尺寸相近,简欧和新中式风格设计的两栋别墅,都非常时尚!
- 小区|150㎡三室两厅全包花88万,敢说是全小区最豪华的装修了!
- 户型|两栋带玻璃房设计的别墅,第一栋简约造价低,25万可拿下
- 主卧|五开间二层自建房布局图,看了谁还在城里买房啊
- 施工|面宽均为12米的两栋自建房,简单施工易,造价25万上下
- 建筑|小开间农村自建房,5款开间10米的农村别墅户型,好看又实用!
- 承重墙|109㎡四口之家,全屋配色太清爽,三室两厅不压抑!
- 客厅|带挑空客厅设计的两栋农村别墅,45万左右可建一栋,完工效果好
