哈喽,终于等到您,还好我没放弃!您终于来了!这里有您最想知道的!这里有您最想不到的!这里有您在别的地方看不到的!总之,您来对地方了~那么下面就让我带您一起看看下面的文章!
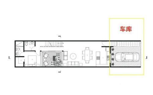
表叔表婶之前在合肥做生意挣了点钱,没想到这次全掏了出来,把他们那农村老家的房子扒掉重盖成独栋别墅,上下两层占地面积也就115平,不过旁边还多加了个30㎡车库放豪车,中间又留了天井做休闲院子,上下通风采光好,花300万盖完村里人都说出息了!

平面户型图:

立面剖析:

刚进门就能感受表叔的个性独特!
有见过这么窄的入户门?不说是独栋别墅,还以为进了哪家小公寓!为了减少一楼潮湿问题,整栋楼都抬高了60公分做地基进门还得走楼梯。

这个室内的装修风格我真的是爱了!
首先吊顶就足够新颖,裸露的水泥墙板,与两边的粉刷的大白墙还形成了空间层次感。加上墙面壁灯、天花板下的射灯及吊灯,全方位灯光,晚上打开不知道有多上档次!

表叔家选择了客餐厨做成开放式公共活动区,增加了家人间的交流,偶尔来客也可以一边做饭一边招呼客人,显得作为主人更加亲和、热情。

房子中间留出的天井,和室内隔断都采用了玻璃的隔断,晚上这里就成了一个最佳的观景台,谁瞧见都要说句羡慕。

总共休息的卧室有2间,楼上楼下各一间。
一楼的卧室和客厅中间就隔着一个天井,可想而知即使在一楼,采光那也完全不愁。天花板还用木格栅做了一下局部吊顶,增加了卧室空间感和舒适氛围。

一楼的卫生间除了应用了同样的局部吊顶外,表叔竟然还在侧边还做了一整块镜面墙,走上一圈灯带,小卫生间不仅空间变大了,档次也是毫不逊色!

将玻璃的设计沿用到二楼,还做了一个玻璃长廊,这要走在上面,想想就觉得刺激!

二楼的卧室和一楼的卧室同处一侧,也是仅靠天井的位置,站在楼上就能眺望整个楼下!

卧室内还设计了一个步入式衣帽间,谷仓门做隔断,试问谁不想拥有一个这样的卧室呢?视野好,空间大,享受!
推荐阅读
- 父母|万大哥花100万在老家给父母盖栋养老房仿四合院,大家觉得值吗?
- lpr|5年期LPR终于降了 看看老房贷月供款能省多少
- 民法典|无需再争房产权了2021年起,父母的老房子,一概按“新规”继承
- 豪宅|壕无人性!林丹乔迁之喜,7000万别墅曝光,院内300万豪车
- 老房子|“刷卡电梯”真的来了?老房子加装电梯又出新方案,不用再争了
- 宅基地|农村有房的先恭喜了,老房或将统一处理,城市子女多留意
- 住建部|将要“告别”拆迁,住建部明确规定,今年起老房子一律这样处理
- 建房子|未雨绸缪,建栋养老房,住在里面会特别安逸和温馨
- 上海市|江苏90后女孩嫁上海老公,父母卖掉老房给女儿买房,竟没自己名
- 老房子|拆迁结束老房子该怎么办官方已有回应,这“2类”人好日子来了
