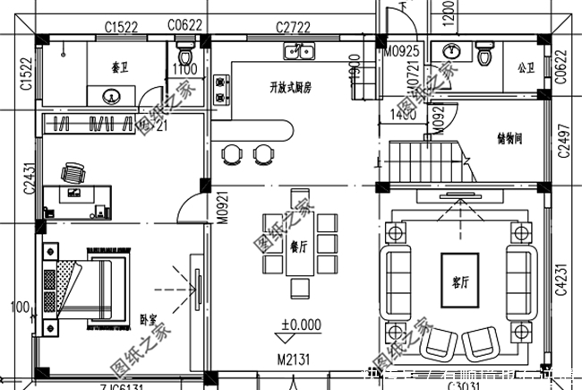
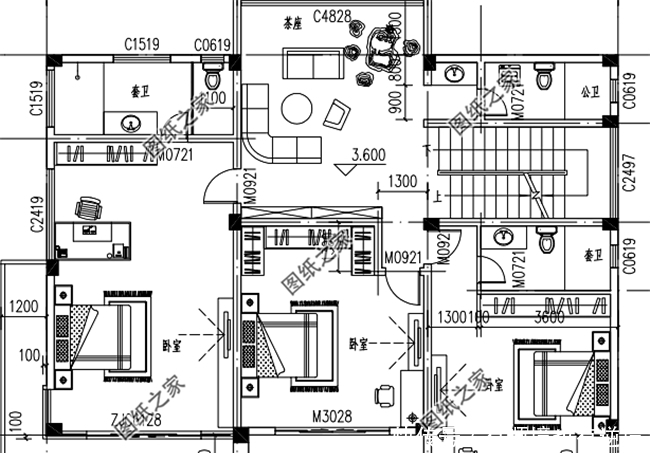
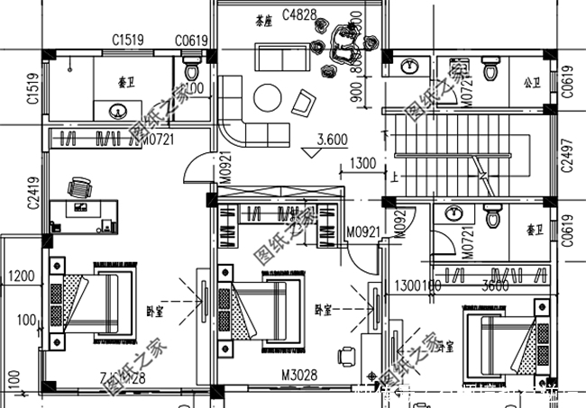
150平方米自建现代二层别墅施工设计图带外观图,平屋顶设计,15x10米,室内功能分区十分合理,二层是卧室作息区域,设有茶座,三间卧室紧紧相连,还设有阳台,能很好的满足日常的需求,也能使室内有良好的采光和通风效果。
【 户型|150平米左右二层别墅设计图,农村别墅这样建,城市楼房一样好看】

占地面积:15m*10m,150平方米左右;
建筑层高:二层;
建筑高度:10.2米(含屋顶);
设计功能:

一层户型:客厅、厨房、餐厅、卧室(带卫生间)、储物间、卫生间;

二层户型:茶座、卧室(带卫生间)x2、卧室、卫生间、阳台;
150平米二层别墅设计图纸,沉稳大气有内涵。在能满足基本住房需求的情况下,大部分家庭更愿意建造二层房屋,不大不小,经济实用,住着刚刚好。

占地面积:14.6m*11.6m,150平方米左右;
建筑层高:二层;
建筑高度:9.8米(含屋顶);
设计功能:

一层户型:客厅、餐厅、厨房、卫生间、主卧×2、书房;

二层户型:休闲厅、主卧(带卫生间、衣帽间、小露台)、卧室×2、书房、卫生间;
本户型为二层复式别墅房屋设计图,客厅中空,带屋顶花园和阁楼(阁楼可以不建)。

占地面积:12.54m*12.4m,150平方米左右;
建筑层高:二层;
建筑高度:9.30米(含屋顶);
设计功能:

一层别墅户型:客厅、餐厅、厨房、主卧(带卫生间)、卧室、卫生间;

二层别墅户型:棋牌室(小客厅)、卧室x3、书房、卫生间、阳台、大露台;
以上就是农村150平米左右二层别墅设计图,选好图纸,建房的关键,大家喜欢哪款,欢迎下方留言讨论。
推荐阅读
- 大气感|小户型如何装出大气感他家这样设计,清爽通透,一眼就喜欢上了
- 小户型|和平榜单出炉!新房乏力?450万小户型即将入市!
- 小户型|谣言害死人!关于买房选户型的5大谣言,谁信谁吃亏
- 大户型|为什么有钱人不买大房子?一听内行人说出的话,才知我家买早了
- 买房|买房时候,究竟什么样的户型才是真正的好户型?
- 精致|小户型装修,这样的厨房设计最为精致,太聪明了
- 户型|买房知识科普什么的户型最好别碰,都是坑
- 餐厅|我要有钱也买横厅户型,沙发不靠墙,餐厨一字排开,越看越高级
- 大户型|只知道“挑户型”,却不知道“4不挑”,难怪很多人买房吃了亏
- 洞洞板|40㎡两房一厅,全屋打满柜子,称得到上小户型“教科书”式设计!
