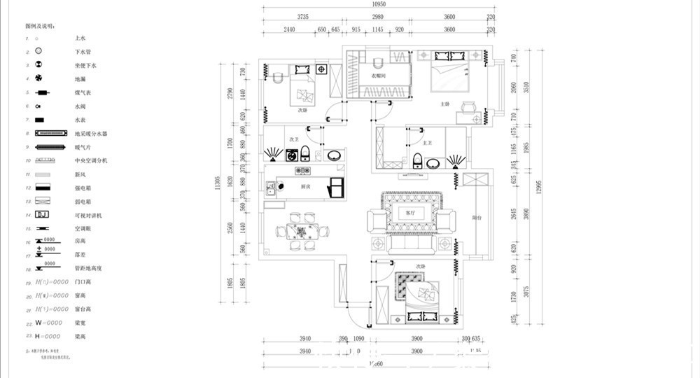
本案为四室两厅户型,业主是一对年轻的夫妻还有一个5岁的儿子,对新古典风格比较喜欢,新古典采用现代风格和欧式风格的一个结合的方式呈现,既有现代风格的明快也有欧式风格的大气,整体色调为暖色调,运用了直线吊顶以及石膏线条的搭配。书房改为主卧室的衣帽间,让女主人完成了有独立衣帽间的梦想,次卧为儿童房整体色调为蓝色,体现了孩子的天真烂漫,客房由于不经常住人采用了现代风格的搭配。

业主对新古典风格比较喜欢,新古典采用现代风格和欧式风格的一个结合的方式呈现,既有现代风格的明快也有欧式风格的大气

整体色调为暖色调,运用了直线吊顶以及石膏线条的搭配。

客房由于不经常住人采用了现代风格的搭配。

次卧为儿童房整体色调为蓝色,体现了孩子的天真烂漫。

书房改为主卧室的衣帽间,让女主人完成了有独立衣帽间的梦想。
【 衣帽间|159平新古典风四居室,书房改为衣帽间,让女主人有了独立衣帽间】

户型:四室两厅业主是一对年轻的夫妻还有一个5岁的儿子,对新古典风格比较喜欢
推荐阅读
- 深绿色|80㎡现代简约小两居,复古绿+胡桃木格调满满,独立衣帽间超实用
- 新城控股|房地产政策或一致指向宽松需求,金科股份涨超8%,房地产ETF(159768)上涨3.93%
- 墙板|他家136平新房,家具优雅,客厅大方,背景墙富有品味!太迷人了
- 衣帽间|坚持去客厅化的家越来越多,或许只有尝试过,才知道住起来有多爽
- 厕所|晒晒30平新房,厕所在厨房里,吃饭在鞋柜上,还有更小的吗
- 功能区|努力买了一套47㎡,虽小但住着踏实,还有衣帽间空间丝毫不浪费
- 改造|书房打掉给儿子做衣帽间,主卧的衣帽间太聪明了!145㎡让人羡慕
- 奢华|98平新房,一进门隔断把人迷住,客餐厅太奢华,装修花25万值了!
- 茶室|衣帽间+储藏间+茶室+露台,13x12米二层美宅,造就舒适生活
- 学区房|逃离上海,回三线城市70万买110平新房,硬装花了7万,值得吗?
