落马|落马桥安置小区户型图出炉,4种套型、6种户型可选,速看~

0
近日,衢州市《双西港片区落马桥安置小区建设方案》出炉,包括安置小区整体环境及安置小区户型图。
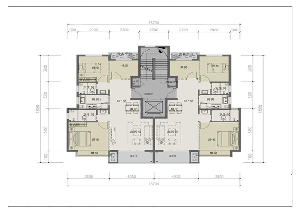
双西港片区集体土地房屋征收安置地点位于麻车里大桥以北,曙光路以西,为双港街道落马桥安置点(期房)。安置房毗邻原址新建,右侧靠曙光路,西侧沿江,面临江山港。小区配套设施齐全,集社区活力广场、儿童游玩天地、邻里庭院花园、邻里社区广场、运动健康球场等为一体。安置面积4.8万方,约480套房源,4种套型、6种户型可供选择。
A户型:70套型三房一厅一卫 
【 落马|落马桥安置小区户型图出炉,4种套型、6种户型可选,速看~】B户型:90套型三房两厅两卫
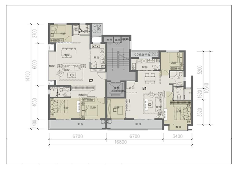
C1户型:105套型三房两厅两卫
D户型:125套型四房两厅两卫
B1户型:90套型三房两厅两卫
C2户型:105套型三房两厅两卫
(B1和C2户型面积不同,但户型格局相同)
*具体以实际交付为准
编辑:朱之悦
推荐阅读
- 安置|上城区紫阳街道加速回迁安置 焕新美好家园
- 拆迁|签订安置补偿协议,你要注意这些!
- 日本|拥有3000亩“新地”的红桥区,找到了“新大陆”!
- 选房|三亚金鸡岭东方花园项目本轮回迁安置选房工作结束 共选取房源56套
- 安置房|拆迁安置,你该如何选择安置房?
- 青浦|大虹桥又将新增120套住宅!均价6万/㎡!
- 交易|为何要严格控制小产权房、安置房交易?
- 断桥铝|越来越多人封阳台不用塑钢了,聪明人都用这种,耐用又好看
- |这次真的定了!刚刚,周山大道高架桥拟审批公示!
- 阳台|3551套!濮阳这个安置房项目公开招标了
