小公主|谭书娅作品106㎡一家三口,现代美式风打造的幸福之家!
设计前言本案的业主是一个三口之家,孩子6岁多,老人会偶尔过来帮忙看看孩子。本案最初的预算比较低,但是为了拥有一个温馨而宁静的家庭环境,业主给予了极大的配合,比如,主卧室门边的那副装饰画,就是业主根据设计师提供的尺寸自己画出来的。与此同时,本案的女业主在孩子的成长方面也是绞尽脑汁,儿童房的设计以及用品全是按照孩子的喜好来安排的。
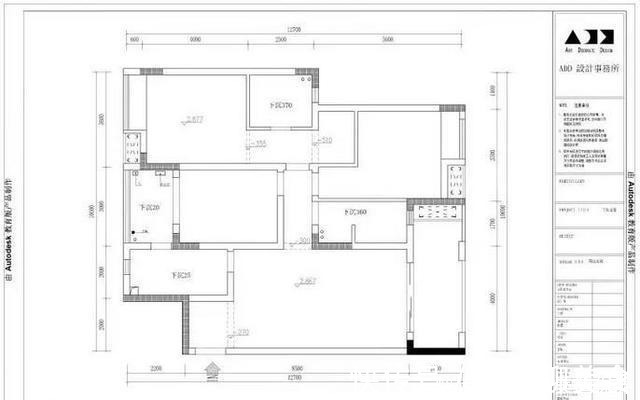
结构改造1、在进门处做了满壁的鞋柜,增大了空间的使用率;2、原始餐厅位置比较小,把厨房空间向生活阳台移动后,餐厅就开阔了,能够容下一张2米的大长桌;3、为了让厨房有更大的操作空间,特意把蒸烤箱放在了餐厅位置。餐桌下面还做了柜子,方便储物;
4、原先主卧的门正对过道,影响主卧的私密性,经过调整后,主卧的门从衣帽间进,同时用大幅装饰画加以点缀,这样既不影响衣帽间的使用,还避免了客厅直视主卧的尴尬;5、设计师将原来小阳台的一部分划给了儿童房,这样儿童房就增加了玩耍的空间,还多了一个学习区域;6、从人性化考虑出发,特意将本案原来的两卫改成三卫,为老人房增加了一个小卫生间,方便老人的日常起居。
案例详解客厅没有主灯的客厅,显得简洁大气。用线条来代替护墙板,既保证了客厅装饰上的美观度,又很好的控制了预算。墙上的建筑艺术装饰画,让整个客厅空间得到延伸。
造型别致的台灯和整体空间相得益彰,金属元素让空间现代感十足。浅雅灰、白色调铺陈出内敛谦恭的低调氛围,搭配张扬的金属色及艺术装饰品的点缀,凸显出一份奢美的华贵。

拥有几何图案花纹的仿真丝窗帘和千鸟格元素的老虎椅相互呼应,让空间的搭配更加和谐统一。
过道的挂画是业主的精心之作,彰显了性格以及对生活的态度。对于家来说,和漂亮相比,有意义的本身更具魅力。
餐厅餐厅区域延续了客厅的浅雅灰,黑白色调让空间更显沉静低调,更突出轻奢的氛围质感。带金属质感的泡泡灯和黄色的装饰花艺让沉静的空间多了一丝俏皮。
墙上的人面装饰盘新颖又别致,这样的填充犹如石子入水,为空间注入了灵动与活力的情绪。
厨房U型的厨房增大了厨房的操作空间,就算多人同时在厨房操作,也不会显得拥挤。
主卧自然宁静的鼠尾草绿色墙面搭配千鸟格元素的卧室设计,清爽宜人,能够轻易的抚平内心的焦躁,使整个身心得到充分的放松。
床头的挂画搭配金属台灯以及吊灯,有一种引人入胜的魔力,简单又意境深远。
推荐阅读
- 屋主|56㎡小户型老房改造,小而美的设计!
- 小钱|游点好笑!收手机的新方式,一抓一个准!这老师怕是柯南看多了?
- 公示|一处体育中心项目、一处小型口袋公园!市北两项目规划公示,配套升级
- 碧桂园|小城市的房住不炒,遇上返乡置业
- 小户型|发现丈夫赠人房产 妻子怒讨买房款
- 小房间|参观140㎡大婚房,朋友都夸餐边柜有档次,我却更喜欢主卧的飘窗
- 楼层|对于买房选楼层,一旦你忽视这5件小事,就只能买到“垃圾楼层”
- 宋智雅|不只穿假货!宋智雅豪宅全是租的,公主风奢华住所都是TA在出钱供
- 木纹板|装修案例欣赏:小北欧风格的居家设计,简洁的同时又不失温馨感!
- 二手房|拖垮你的不是高房价和高压力,而是鸡毛蒜皮,不拘小节,更自由
