采光感|94平米的现代风格,原来二居室还可以这样装修

风格:现代风格整间房子的色彩主要采用黑白灰为主色调,采光也很好,采用现代的风格。用软装搭配出效果和舒适度,挂画采用亮丽的颜色。融合现代的装饰成分,配饰以及装饰画,都加入了现代元素。浅色墙面和装饰画相称,为空间定下了和谐的格调,搭配浅色沙发及抱枕,感觉空间不沉闷,勃勃生机。
客厅怎么装修设计?客厅家具的选用上不要以深色为主,深色的家具会显得压抑,而浅色系的家具使客厅内的空间更加宽敞,在一定程度上也提升了室内的采光感。还可以在客厅加上镜子,利用镜子反射自然光,从而使客厅显的更加明亮。
采光感|94平米的现代风格,原来二居室还可以这样装修

【 采光感|94平米的现代风格,原来二居室还可以这样装修】整间房子的色彩主要采用黑白灰为主色调,采光也很好,采用现代的风格。用软装搭配出效果和舒适度,挂画采用亮丽的颜色
采光感|94平米的现代风格,原来二居室还可以这样装修

利用吧台划分空间,后方是客厅,前方则是西厨。
采光感|94平米的现代风格,原来二居室还可以这样装修

融合现代的装饰成分,配饰以及装饰画,都加入了现代元素。浅色墙面和装饰画相称,为空间定下了和谐的格调,搭配浅色沙发及抱枕,感觉空间不沉闷,勃勃生机。
卧室装修的要求较其他空间会更加严格,因为卧室是人们休息的地方,为了保证你有个好睡眠,卧室必须具备隔音的条件,而且卧室的美观度同样影响主人的心情,所以一个美观私密的卧室是非常重要的。
采光感|94平米的现代风格,原来二居室还可以这样装修

卧室设计以温馨为主,居住舒适,温暖宜人。
阳台装修一定要注重安全,材料一定要选择安全环保的,并根据阳台特点选择材料,比如窗台最好使用石材作为面板,因为石材具有防水、防晒,不开裂等特点。阳台还要注意承重,不能超过阳台荷载,避免造成危险。
采光感|94平米的现代风格,原来二居室还可以这样装修

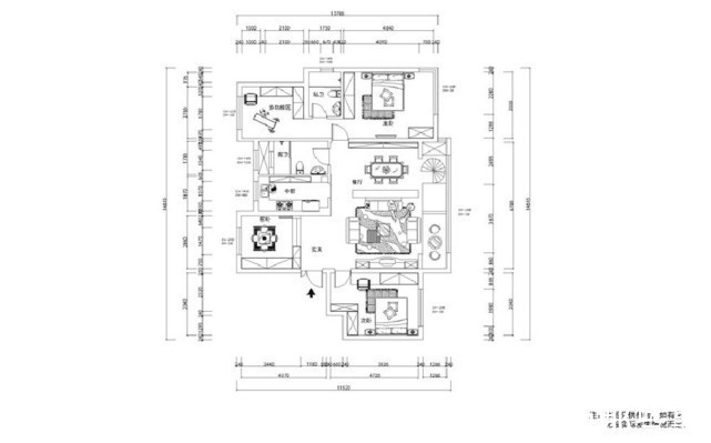
从入户门进入,玄关左手边是客卧,右边是就是客厅
采光感|94平米的现代风格,原来二居室还可以这样装修

玄关左手边是客卧,右边是客厅,客厅之前吧台划分空间,前方则是西厨。方正的房子整体利用率高,南北通透的房子居住舒适。三面采光、全方位景观,愉悦心情与每一位家人即时分享。

    推荐阅读