日本是一个老龄化问题很严重的国家,并且越来越多的年轻人选择不结婚,专注自己的工作和自由的生活,导致出生率持续降低,养老问题日益突出,老有所养也是退休人士关心问题。之前我们做过一些日式养老项目,家具尺寸布置非常精细,都是为老年人或残疾人设计,只要一个人在家,通过轮椅可以到达每个角落,达到自理的状态。本篇文章的案例是例外,是一位神奈川县的艺术家为了照顾年迈的母亲,特意在二宫町建造一栋颇具个性的房子,和家人一起住,把日子过得有滋有味,虽然面积只有88㎡,却打造的温馨舒适。接下来我们一起看看,这个小宅是什么样子的。
外观
这栋银灰色住宅紧邻马路,周围是一片2至3层的普通房子,房屋的后面是宽阔的大海,以及忽隐忽现的山脉。由于该房子独特的造型,显得异常显眼,很快成为人们参观的对象,这位业主趁机在自家墙上挂出画作,当作展厅,名气越来越大,获得无数网友的称赞。

房屋的倾斜屋顶像雕塑般矗立着,搭配与众不同的材质提高环境的艺术性,陡峭的斜屋顶与对角线与两面墙交叉,形成宽窄与高低的立体空间形象。


入户是一面落地玻璃窗,像被一把锋利的刀切了一个口子,干脆利落。通过干净的玻璃墙,室内景象一览无余,温暖的灯光把空间渲染的温馨无比。
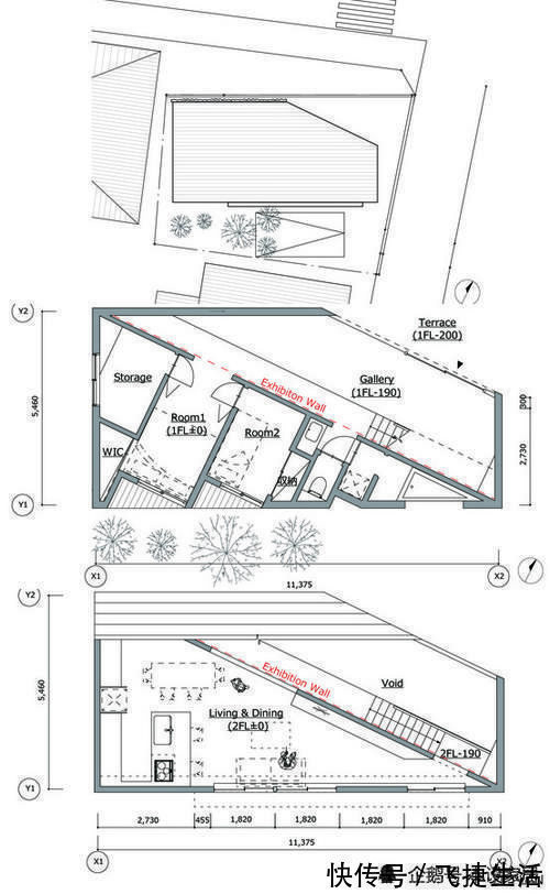
平面图

房子共有两层,一层布置两间卧室、储藏室和卫生间,大厅公共部分兼做展厅。二层是敞开式的客厅、餐厅和厨房。
一层

到了室内,地面铺设米黄色大理石,墙面大面积留白,以便业主展出更多的作品,比较有创意的是斜屋顶采用木地板装饰,再加上入口大面积的落地玻璃窗,采光充足,没有因为面积狭小产生压迫感。

靠墙抬高15公分制作一个走廊式的木地台,家人或参观人员把鞋放置在地台下,保持环境整洁。对面布置的小家具,搭配些小绿植,很有活力,充满了精致生活的烟火味。


靠斜角的门内是业主一家的私人领域,木地板延伸到各个空间,白色墙壁挂着小巧的装饰画,看起来精致简约。

主卧遵从日式生活的断舍离,简单的原木色搭配白墙墙面,没有多余的装饰,无踢脚线设计,整齐划一的界限,顿生美感,不被物质所累,也是一种轻松的生活方式。两个木门内分别是书房和储藏室,晚上睡觉时,拿出地垫和被子就能睡觉。
推荐阅读
- 越秀|一位62岁婆婆的心里话:全款给儿子买房,是我为爱犯的错
- 日本|日本房地产又要泡沫了?最高5亿日元的住宅还未竣工就被一抢而空
- 李淼|厨房锅碗瓢盆如何收纳?日本收纳达人梶谷阳子,用自己家亲身演示
- 一居室|日本女生晒27㎡的一居室:一人居住,拒绝一地鸡毛的生活
- 木纹|家里不要傻傻铺木地板了,有钱人更爱铺这种地板,省钱实用又好看
- 收纳|为什么说日本家居走心?我就看完衣帽间的收纳设计,嘴上不服心服
- 房价|为什么当年日本要刺破房产泡沫,如果坚持“保房价”会怎么样?
- 厨房|一位56岁阿姨的独居生活照:悠然自在,28㎡的生活让人羡慕
- 日本|拥有3000亩“新地”的红桥区,找到了“新大陆”!
- 储物柜|为什么日本人的家看起来更“宽敞”?而我们的家看着就很憋屈!
