我们国人对于传统的合院总有一种特殊的情感,经典的院落形态和细节处的装修彩绘,处处蕴含着深刻的文化内涵,这样的房子才更贴近我们老百姓的生活。相信若不是宅基地限制,谁都会想建一个中式合院!
而其中,新中式建筑更博大家的喜爱,它将中式的典雅内涵,与当下流行的建房元素融为一体,细节考究更见功底,若是您家近期有想建中式合院的想法,那么这套新中式住宅,一定不能错过。

户型基本信息
占地尺寸:11m×12.1m
占地面积:141.54㎡
建筑面积:309.63㎡
建筑高度:10.92m
建筑结构:框架结构
建筑情况:设6室 2厅 3卫 1厨 1书房 1工作室 2衣帽间 1露台
【 合院|农村盖房选中式准没错,11×12米中式大院户型,院子配露台太赞了】

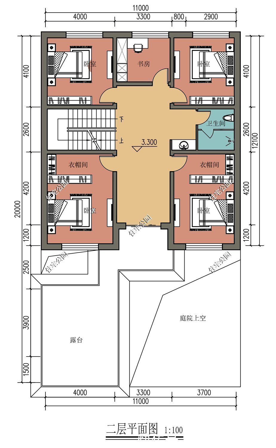
平面布局图:
中式庭院,寓情于景,它将山水的绝色韵味融进这座小院里,在有限的环境下将自然美与人工美结合在一起,让古今交替,感受这份独特美学。
房屋巧妙地在庭院角落设计工作室一间,以满足各类手工作业的需求。主房布局严格南北通透的原则所设计,客厅动区明朗,依靠南面落地窗来采光,保证居室光照充足。
卧室自带衣帽间,床两侧留有过道方便走动;卫生间特意做了三分区设计,更方便生活。
仔细观看会发现,这套户型东西两侧均无窗,这也是考虑到农村人的生活习性所设计,大多数农村地区东西都是邻居家,不开窗也能避免纷争,保护隐私。

二层的四间卧室均位于房屋的各个角落,装扮温馨,居住体验好;再搭配独立书房,享受无人打扰的舒适生活。
露台也是不可少的设计,庭院晾晒露台观景,日落黄昏、流云晚霞,不错过每一处风采。

关注本号,每天都有新户型,还有乡邻晒家,建房省钱小妙招一手掌握。
推荐阅读
- 马头墙|别拿一层不当别墅!4套一层户型图纸,农村养老房的最佳选择
- 两层半|农村盖房子,是两层半好还是三层好?成本差别大吗?该看
- 宅基地|农村有房的注意了下半年这5种情况,房子可能会被拆除
- 三线城市|远嫁山区农村,晒晒婆家的婚房,院子大得吓人,厨房包你没见过!
- 楼层|为何开发商盖房子都不会超32层?听师傅一说,才知他们太聪明了
- 自然资源部|停止“登记”?房产权无需争了,明年起,农村房屋全都“这样”处理
- 占地面积|回农村给父母建养老房,就在这10套图纸里选一套吧,颜值高又实用
- 别墅|5款新中式二层农村别墅,低调大气,中式传统美永不过时
- 宅基地|2022农村又有“新规定”,不允许“私自建房”了?到底怎么回事?
- 小知识|12×11米三层欧式别墅,农村盖房选这套准没错,户型美观又大气
