张女士|越来越多人去客厅化设计,像她家这样装修,59㎡住4口人很舒适
一家人能生活在一起,无论房子多大也是幸福的。在一线城市里,选择一套小户型作为过渡住房,似乎成为外来务工人员的首选。小户型不仅能暂时缓解经济上的压力,而且只要用心装修,好好设计一番,舒适度不亚于大面积。 
正如来自他乡的张女士,在一对双胞胎即将上小学时,与老公筹钱在北京买下一套59平方的迷你学区房,虽然面积并不大,但一家四口依然热情满满,对新家充满了无限渴望。 户型分析+设计说明
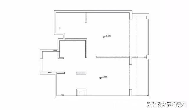
▲原始结构图这套59平方原本是一室一厅的结构,从平面图上看,客餐厅非常拥挤。一家四口住这里首要解决的就是房间问题,双胞胎虽然都是男孩子,但他们也需要独立又能互动的空间,并且一家人四口的收纳也是重中之重,如何来解决这两个棘手的问题,他们真是费了不少功夫。 “去客厅”式设计是指将客厅传统的三件套(电视+沙发+茶几)给舍弃,让原来深入人心的格局转变成符合现代都市人的审美。张女士将客厅与主卧室之间的墙体去除,隔起两个开放式“卧室”,刚好可以摆放一张单人床,两张床之间用收纳柜隔开,中间还设计了可爬行的洞,满足两个小男孩爱打闹的天性,非常灵活。 
▲平面布置去掉客厅的设计令室内变得非常宽敞,原来的沙发墙也被一大排收纳柜替代,少了传统三件套,整个动区方便两个小子在家回来奔跑; 卫生间的改造也非常棒,原本一个卫生间对于四口之家来讲,使用非常拥挤,尤其早上高峰时段,聪明的女主人将卫生间扩大,占用原来的餐厅在卫生间安装两个马桶,不仅实现主卧室里有单独卫生间,同时还有一个公共马桶。在进门处就设计双盆台面,满足一家人使用。 这套房子装修完发到网上,因为完美的改造受到成百上千的网友点赞,一个小家实现了多功能,而且一点不显拥挤,下面跟随沐宸一起去看看实景。 玄关


▲进门便是玄关,在这里就表现出令人赞赏的功能。左手边是一排收纳柜,先看SKU建模图,里面有旋转式鞋柜,再宽的进深都不担心拿取不到,四口人的鞋物存得满满的。而旁边就是上下摆放的洗衣机和烘干机,紧接着就是家政柜,收纳了各种清洁用具。关上门你根本发现不了有如此强悍的功能。 
▲在这里实现了“脱下脏衣物,丢进洗衣机洗再接着烘干”一套流程,这对于家里有两个调皮男孩来讲,非常实用,进门开始就切断沙与灰尘。 

▲收纳柜对面就是占用厨房空间制作一双盆台面,两个小家伙不争不抢,进家门后第一件事就是洗去手上的脏东西,太方便了。 “去客厅设计”空间

推荐阅读
- 庭院|取消客厅三件套,只摆一张大长桌,79㎡的家简洁质朴,太满意了
- 预售证|2022年首张预售证出炉,新增住宅房源420套!
- 农村宅基地|转载:一张图看懂农村宅基地用地建房如何申请和审批
- 经济圈|张国华:“三新”谋就成渝地区双城经济圈战略下房产高质量发展
- 契税|很多人把这“几张纸”当废纸扔掉殊不知“废纸”比房产证还重要
- 越城|请查收从绍兴越城热门楼盘现场传来多张谍照(组图)
- 张家口|观山隐秀!万科、城改蜀山合作地块案名公布!
- 卢女士|惊呆!买房签完认购书,说好的9万多元优惠却没了
- 李女士|700万买别墅被退回,女子找记者曝光黑幕,开发商:赔你10万
- 云璟|请查收从徐州鼓楼热门楼盘现场传来多张谍照(组图)
